Acceso para personas con discapacidadAguaAire acondicionadoAlbercaZona infantilAsadorBalcónCaseta de vigilanciaCocina equipadaConserjeElectricidadElevadorJacuzziRecámara con closetAzoteaSaunaTerrazaVista panorámicaWifiZonas verdesParcialmente amueblado
Hace 1 semana, 6 días en - Home Playa
Centros sanitarios
A 1 km de CENTRO DE SALUD TULUM
Ocio
A 623 m de Plaza Pública Aldema Zama
Escuela
A 994 m de Escuela Primaria Urbana Federal "Ford 198"
Hermoso estudio en PREVENTA en residencial MAGNOLIA de lujo, Aldea Zamá a minutos de la playa, y la zona arqueologica de Tulum, cuenta con sala, comedor, area de recámara, cocina equipada, 1 baño, acabados de lujo, terraza, vista hacia el parque, terreno con doble frente , elevador, lobby, alberca infinity en el roof top, VAPOR , Entrega en DIC 2024 Su precio de venta total es de $140,000 usd Excelente para vivirlo y rentarlo como inversión.
EL DESARROLLO ESTA CONFORMADO POR 10 ESTUDIOS, 2 PENTHOUSES Y 3 LOCALES COMERCIALES , APARTA EL TUYO !!!!
FACILIDADES DE PAGO
* ROOFTOP CON ALBERCA INFINITY Y SOLARIUM
* VAPOR
* 2 BICICLETAS DE REGALO
* CONCIERGE LOBBY
* ELEVADOR
* LLAVES ELECTRONICAS
* CONTROL DE VOZ ALEXA O GOOGLE PARA ATENUAR LA LUZ
* ACCESO A CLUB DE PLAYA GRATUITO
AVANCE DE OBRA ACTUAL 90%
Estudio
$ 3,000,000 MXN
Destacado
Ejidal, Tulum
1 Recámara
1 Baño
54 m²
Aire acondicionadoAlbercaBalcónCaseta de vigilanciaCocina equipadaCocina integralEstacionamientoGimnasioRecámara con closetTerrazaCompletamente amueblado
Hace 1 semana, 6 días en - León & Co Bienes Raíces
Centros sanitarios
A 914 m de Gynecologist
Escuela
A 926 m de Centro de Estudios Trilingue "In Najil Xook Tulum"
Centros sanitarios
A 467 m de orthotulum
Estudio en venta en Calle 8 Tulum
Generales:
• Cama matrimonial
• Baño privado
• Completamente equipado y amueblado
• Closet
• Aire acondicionado
• 54.62 m2
Amenidades:
• Piscina
• Gimnasio
• Snack bar
• Lavandería
• Biblioteca
• Recepción
• Seguridad 24/7
*Valor de venta:*
• $3,000,000.00 pesos
SeguridadJardínCisternaAlbercaCocina integralCuarto de servicioElevadorGimnasioBalcónAire acondicionadoElectricidadAguaRecámara con closetCaseta de vigilanciaWifiSolo familiasPermite niñosCompletamente amueblado
Hace 5 días, 15 horas en - INVERSIONES INMOBILIARIAS
Centros sanitarios
A 1 km de Gynecologist
Ocio
A 746 m de Plaza Emiliano Zapata
Centros sanitarios
A 1 km de orthotulum
Invierte desde $269,000 de enganche en suite en Tulum | Propiedad fractional con rentas!!!
• Precio de la fracción $899,000
• Cuántas semanas al año: 6 semanas al año.
ELIGE UNA A UNA TUS SEMANAS FAVORITAS👌🏻
• Rendimiento estimado: réntalo 4 semanas y se paga solo el mantenimiento
• Administración incluida: Si
• Ubicación turística: A 8 min. del mar
SOBRE AV. KUKULCAN
• Plusvalía: Si
El modelo fractional permite que varias personas adquieran una propiedad dividiendo el costo total entre socios o semanas de uso.
A 888 m de Escuela Primaria Urbana Federal "Ford 198"
Amplio Studio en Aldea Zamá Tulum (zona de tiendas) con restaurantes, locales comerciales y más en la mejor zona de Tulum.
La unidad tiene 40 m2 con cocina, sala y cama king size y con una excelente vista a la calle comerical!
Amenidades: Gym, Elevador, Albercas, Estacionamiento, Concierge, Seguridad
Listo para usar credito hipotecario!
Estudio
$ 2,500,000 MXN
Tulum, Quintana Roo
1 Recámara
1 Baño
40 m²
EstacionamientoJardínCisternaAlbercaTerrazaCocina integralElevadorGimnasioBalcónAcceso para personas con discapacidadInternetAire acondicionadoElectricidadAzoteaJacuzziAguaAsadorZonas verdesVista panorámicaCaseta de vigilanciaConserjeCompletamente amueblado
Hace 1 semana, 6 días en - Quintana Broker
El Estudio es un lugar tranquilo y elegante en Tulum es perfecto para aquellos que buscan una escapada relajante en medio de la belleza natural y cultural de la zona.
Por el momento la unidad no cuenta con agua caliente El alojamiento
Dentro de sus amenidades en áreas comunes podemos encontrar lo siguiente:
* Alberca (8am-10pm)
*Jacuzzi
*Fogatero
* Estacionamiento- Gratis
* Seguridad 24 hrs.
* Cocina equipada
* Cama King Size
* Aire acondicionado
* Conexión WiFi
* Smart TV
* Caja de seguridad privada
* Secador de pelo
* Plancha de Ropa
* Closet
* Refrigerador
* Microondas
★★★★★ SERVICIOS (Descuentos en alguno de ellos) ★★★★★
- Transfer (Aeropuerto - condominio)
- Renta de autos, bicicletas y motos
- Restaurantes
- Cenotes
- Beach club
- Spa: El mejor circuito de hidroterapia de la ciudad , ubicado en central Park Tulum
- Coworking “Los amigos Tulum*
- Gym “Star Fit” Ubicado Park Tulum.
(bajo reserva y sujeto a disponibilidad)
UBICACIÓN APROXIMADA:
2.6 km (1.6 millas) 9 minutos del centro de Tulum
5.4 km (3.3 millas) A 13 minutos de la zona hotelera -playa por la AV. kukulcán.
5.1 km (3.1 millas) A 16 minutos de la zona arqueológica de Tulum
4.1 km (2.54 millas) 11 minutos del supermercado Chedraui
120 km (74 millas) 1 h 47 minutos desde el Aeropuerto Internacional de Cancún.
Tulum es una de las joyas más deseadas del Caribe mexicano, delineado por 10 kilómetros de arena blanca y aguas turquesas que le valieron para ser nombrado Pueblo Mágico.
Aquí, la naturaleza se muestra en todo su esplendor a través de lagunas, cenotes y una zona arqueológica maya a la orilla del mar, que fue utilizada como centro ceremonial astrológico y comercial.
No faltan los paseos en bicicleta que te internan por la selva para llevarte a conocer estas maravillas.
*Lugares de interés que no te puedes perder en Tulum*
- Laguna Kaan Luum
- El Calavera
- Snorkeling
- Gran Cenote de Tulum
- Playa del Paraíso-playa pública
- Zona Arqueológica de Cobá
- Zona Arqueológica de Tulum
- Xcare…
Hace 1 semana, 6 días en - RED CIRCLE INMOBILIARIA
Centros sanitarios
A 1 km de CENTRO DE SALUD TULUM
Escuela
A 749 m de Centro de Estudios Trilingue "In Najil Xook Tulum"
Centros sanitarios
A 1 km de Hospital de Tulum
PRECIOSO DEPARTAMENTO EN PRE-VENTA, UBICADO EN LA MEJOR ZONA TURÍSTICA DE TULUM. YA QUE SE ENCUENTRA EN LA VELETA.
CONSTA DE:
61.82 mts2
AMPLIA ESTANCIA, 1 RECÁMARA, 1 BAÑO, COCINA INTEGRAL, ALBERCA PRIVADA, 1 LUGAR DE ESTACIONAMIENTO, ELEVADOR, VIGILANCIA 24/7 HRS.
AMENIDADES:
ALBERCA EN EL ROOF TOP, GYM, YOGA, ÁREA GRILL.
PRECIO $3'377,933.00
APARTADO $50,000.00
FECHA DE ENTREGA: MARZO DEL 2025
Hace 1 semana, 6 días en - RED CIRCLE INMOBILIARIA
Centros sanitarios
A 1 km de CENTRO DE SALUD TULUM
Ocio
A 733 m de Tumben Kaa
Escuela
A 532 m de Escuela Primaria Gregorio Pérez Cahuich
SE VENDE PRECIOSO ESTUDIO NUEVO EN TULUM, LISTO PARA HABITARSE Ó RENTARSE.
SE ENTREGA TOTALMENTE AMUEBLAD0 Y EQUIPADO.
CONSTA DE.
46 MTS2 DE SUPERFICIE Y CUENTA CON:
UNA HABITACIÓN MUY AMPLIA, COCINETA, VESTÍBULO, ÁREA DE LIMPIEZA, BAÑO, ALBERCA Y TERRAZA.
SE ENCUENTRA A UNOS 15 MINUTOS DE LA ZONA HOTELERA Y DE LA PLAYA.
PRECIO $2'700,000.00
SE ACEPTAN CRÉDITOS BANCARIOS
Estudio
$ 1,890,000 MXN
Destacado
La Veleta, Tulum
1 Recámara
1 Baño
EstacionamientoCisternaCocina integralBalcónCocina equipadaInternetAire acondicionadoElectricidadAguaJacuzziTelevisión por cableCaseta de vigilanciaRecámara con closetWifiVista panorámicaPermite niñosSolo familiasPermite mascotasCompletamente amueblado
Hace 1 semana, 6 días en - DRABAGO INMOBILIARIA
Centros sanitarios
A 1 km de Gynecologist
Centros sanitarios
A 1 km de orthotulum
Aprovecha Oportunidad única en la zona, cerca del tren maya, playas, aeropuerto, ruinas, cenotes e invierte en un municipio en pleno desarrollo y crecimiento, también ya cuenta con la primer universidad en la zona, Invierte al mejor precio en la zona de mayor crecimiento y plusvalía.
En el municipio de Tulum se lleva a cabo cada año uno de los festivales más grandes de música electrónica inicia en el mes de diciembre y termina en febrero, teniendo artistas como David Gueta, Tiesto entre otros.
Venta hermoso Loft amueblado y equipado de 40 m2 y con llave en mano, cuenta con cocina integral, barra de granito negra, parrilla de inducción de 4 quemadores, alacenas de madera de Tzalam, refrigerador, baño completo con canceles de vidrio templado, closet cerrado de madera tzalam, cama matrimonial, sofá cama matrimonial, mesita con 2 sillas de madera, aire acondicionado, ventiladores, amplio balcon con hermosa vista a la naturaleza, se ubica en Región 15 con solo 12 departamentos con todo el estilo de Tulúm, alberca, jacuzzi, pequeña área de bar, estacionamiento para coches y bicicletas, jardín.
A solo 3 cuadras de la Av kukulcan, a una cuadra de Aldea Zama y a 4 km de la zona hotelera y el hermoso Mar Caribe con sus espectaculares playas blancas
Disfruta de este hermoso loft rodeado de la naturaleza y del paraíso donde vivirás y disfrutarás unas vacaciones al único y exclusivo estilo Tulum.
Actualmente Se encuentra en Airbnb con excelentes comentarios y ocupación
Precio de Oportunidad ‼️
Venta $1,980,000 pesos
Estudio
$ 4,400,000 MXN
Tulum
1 Recámara
1 Baño
66 m²
AguaAire acondicionadoAlbercaCircuito cerrado de televisiónCisternaCocina integralConserjeElevadorGimnasioInternetAzoteaVista panorámicaCompletamente amueblado
04/02/2026 en - Alberto Ramírez Montoya
Centros sanitarios
A 667 m de CENTRO DE SALUD TULUM
Guardería
A 631 m de JARDIN DE NIÑOS ESTADO DE QUINTANA ROO
Ocio
A 242 m de Rotario
Departamento de 1 recámara de entrega inmediata en Tulum, completamente amueblado y equipado, listo para uso u operación inmediata.
Cuenta con una superficie total de 68.40 m², distribuidos en 51.50 m² interiores y 16.90 m² de terraza, con una distribución funcional que integra cocina, sala-comedor, recámara, baño y terraza privada.
Ubicado en una zona estratégica de Tulum, con acceso rápido a la Av. Cobá, zona hotelera y playas, dentro de un desarrollo diseñado para estancias cortas y medias.
Este condominio ofrece amenidades tipo resort que fortalecen la experiencia del huésped, como alberca infinity, rooftop, spa, gimnasio, cine, lobby con recepción, servicio de concierge, bar & grill, cenote, palapa holística, áreas verdes, club de playa, elevador y estacionamiento.
Una excelente opción para quien busca certeza, ubicación y disponibilidad inmediata en uno de los destinos turísticos más demandados del Caribe Mexicano.
Estudio
$ 2,188,026 MXN
Destacado
Tulum, Quintana Roo
1 Recámara
1 Baño
39 m²
AguaAire acondicionadoAlbercaZona infantilAsadorBalcónCaseta de vigilanciaCircuito cerrado de televisiónCisternaCocina equipadaCocina integralConserjeCuarto de servicioElectricidadElevadorEstacionamientoGimnasioInternetJacuzziJardínDespachoRecámara con closetAzoteaSala polivalenteSaunaSeguridadTelevisión por cableTerrazaVista panorámicaWifiZonas verdesSin amueblar
Hace 1 semana, 6 días en - Maya Moon Your Dream Home
Centros sanitarios
A 1 km de CENTRO DE SALUD TULUM
Escuela
A 437 m de Centro de Estudios Trilingue "In Najil Xook Tulum"
Centros sanitarios
A 1 km de Hospital de Tulum
UBICACION:
El proyecto se encuentra ubicado en calle 4 sur, entre 15 Av.
y 10 Av. Tulum, Quintana Roo. En una de las zonas con mayor
auge y crecimiento de la Riviera Maya, a unos cuantos pasos
de la avenida Tulum, la principal de la población, destacando
su cercanía a zona comerciales y de servicios, así como de
importantes desarrollos inmobiliarios.
CONCEPTO:
Inspirado en la demanda de clientes que desean una
experiencia de vida única en su hogar en el caribe mexicano,
que a la vez genere ingresos a través de rentas vacacional en
un patrimonio de alto valor y disfrute tanto personal como
familiar, brindando así un modelo único que genera un
equilibrio entre calidad de vida e inversión segura.
DISEÑADO CON MÚLTIPLES ESPACIOS DE
SERVICIOS Y ENTRETENIMIENTO.
Permite a sus residentes y visitantes disfrutar a plenitud las
instalaciones, brindando como resultado un estilo de vida y
confort que se convierte en un atractivo clave para nuestro
programa de rentas, generando ingresos pasivos para nuestros
clientes con una inversión inicial baja.
TIPOLOGIAS:
Contempla la construcción de 272 unidades
para venta, con área comercial, restaurante y atractivas
amenidades, en donde se priorizan las áreas verdes y el
agua, generando una sensación de estadía en el mar Caribe.
AMENIDADES:
Restaurantes
Spa
Gimnasio
Fitness Room
Outdoor Gym
Coworking Center
Sala de presentaciones
Cine
Sports Bar
Sala de computo
Sala de juegos
Hamaqueros
Plaza comercial
Kids Club
Gamers Room
Salon de eventos
Vivero
Estacionamiento
.......................................................................................................................................
LOCATION:
The project is in calle 4 sur, between 15 and 10 Av. Tulum, Quintana Roo, in one
of the greatest growth and boom areas, and is just a few steps away from the
Avenida Tulum, the main street of the town, near shopping and services areas,
and surrounded by important real estate developments.
CONCEPT:
It offers an…
Estudio
$ 1,656,000 MXN
Destacado
Las Palmas Tulum, Tulum
1 Recámara
1 Baño
38 m²
AguaAire acondicionadoAlbercaZona infantilAsadorBalcónCaseta de vigilanciaCircuito cerrado de televisiónCisternaCocina equipadaCocina integralConserjeCuarto de LimpiezaCuarto de servicioElectricidadElevadorEstacionamientoGimnasioInternetJacuzziJardínDespachoRecámara con closetAzoteaSala polivalenteSaunaSeguridadTelevisión por cableTerrazaVista panorámicaWifiZonas verdesSin amueblar
Hace 1 semana, 6 días en - Maya Moon Your Dream Home
Centros sanitarios
A 1 km de orthotulum
Escuela
A 568 m de Centro de Estudios Trilingue "In Najil Xook Tulum"
Escuela
A 560 m de Centro de Estudios Trilingue "In Najil Xook Tulum"
🏡 Ficha Técnica – Departamentos en Tulum (Español)
Etapa: Preventa
Entrega estimada: 2026
Ubicación: Tulum, Quintana Roo, México
Precio desde: $1,650,000 MXN
Descripción:
Nuevo desarrollo residencial en Tulum, diseñado para quienes buscan bienestar, comodidad y una excelente oportunidad de inversión. Su ubicación estratégica lo convierte en una opción ideal para vivir, vacacionar o generar ingresos a través de rentas.
Amenidades destacadas:
• Gimnasio de calistenia al aire libre
• Albercas rodeadas de vegetación
• Área de confort y relajación
• Espacio de coworking moderno
• Canchas de UniPadel
• Parque para mascotas (Pet Park)
• Estacionamiento privado
• Elevador
¿Por qué invertir en Tulum?
• Destino internacional con alta demanda turística e inmobiliaria.
• Plusvalía en constante crecimiento.
• Excelente retorno de inversión mediante rentas vacacionales o de largo plazo.
• Precios de preventa accesibles desde $1.65 millones de pesos.
• Estilo de vida relajado y en contacto con la naturaleza, ideal para nómadas digitales, inversionistas o familias.
⸻
🏡 Fact Sheet – Apartments in Tulum (English)
Stage: Pre-sale
Estimated delivery: 2026
Location: Tulum, Quintana Roo, Mexico
Starting price: $1,650,000 MXN
Description:
New residential project in Tulum designed for those seeking well-being, comfort, and a strong investment opportunity. Its strategic location makes it ideal for living, vacationing, or generating rental income.
Highlighted amenities:
• Outdoor calisthenics gym
• Pools surrounded by lush greenery
• Relaxation and comfort areas
• Modern coworking space
• UniPadel courts
• Pet park
• Private parking
• Elevator
Why invest in Tulum?
• A top international destination with strong tourism and real estate demand.
• Constantly increasing property value.
• Excellent ROI through vacation or long-term rentals.
• Accessible pre-sale prices from $1.65 million MXN.
• Unique lifestyle close to nature, ideal for digital nomads, investo…
Estudio
$ 1,740,000 MXN
Tulum, Quintana Roo
1 Recámara
1 Baño
30 m²
SeguridadEstacionamientoJardínCisternaAlbercaTerrazaCocina integralElevadorGimnasioBalcónCocina equipadaSala polivalenteInternetAire acondicionadoElectricidadAzoteaAguaTelevisión por cableAsadorZonas verdesDespachoVista panorámicaRecámara con closetCaseta de vigilanciaSin amueblar
Hace 1 semana, 6 días en - Maya Moon Your Dream Home
Centros sanitarios
A 1 km de CENTRO DE SALUD TULUM
Ocio
A 783 m de Plaza Emiliano Zapata
Centros sanitarios
A 1 km de Hospital de Tulum
Se encuentra en el corazón de Tulum, rodeado de las antiguas reuinas, un mar turquesa y sus increibles cenotes.
Está dentro de Alda Zama, la zona residencial más exclusiva, conocida internacionalmente por su estilo de vida contemporáneo que permite una mezcla perfecto de lujo y naturaleza.
Nuestros departamentos están diseñados para crear un balance entre comfort y naturaleza, disfrutando de amplios y funcionales espacios que permiten la experiencia de reconectar con la naturaleza que nos rodea.
Tiene unas amenidades ideales, amplias, cómodas y únicas, teniendo en cuenta cada detalle para crear experiencias agradables en la naturaleza.
AMENIDADES:
Aparcamient
Camastros
Piscina
Condominio privado
Área social
Terraza
Gimnasio
Elevadores
............................................................................................................................................
It is located in the heart of Tulum, surrounded by ancient ruins, a crystal turquoise sea and incredible natural cenotes.
It's developed inside Aldea Zama, the most exclusive residential area, known internationally for its contemporary lifestyle that allows the blend of luxury with nature.
Our apartments are designed to create a balance between comfort and nature, by enjoying spacious and functional spaces that allow the experience of reconnecting with natural surroundings.
It has a careful design of amenities, from their designated spaces to their comfortable uniqueness; taking care of every detail to create one of a kind social experiences in nature.
AMENITIES:
Parking lot
Sun decks
Pool
Gated community
Social area
Terrace
Gym
Elevators
Estudio
$ 2,350,000 MXN
Destacado
Tulum
1 Recámara
1 Baño
40 m²
Aire acondicionadoAcceso para personas con discapacidadCocina equipadaJardínAsadorGimnasioCocina integralElevadorSeguridadAlbercaTerrazaCompletamente amueblado
18/02/2026 en - Coldwell Banker Bloom
Centros sanitarios
A 1 km de CENTRO DE SALUD TULUM
Guardería
A 288 m de Escuela Preescolar Sac be
Ocio
A 778 m de Rotario
Estudio en Venta en Menesse Tulum, Aldea Zama
Primer Nivel | Terraza
Amueblado y listo para habitarse, ubicado en Aldea Zama, la zona más exclusiva y de mayor plusvalía en Tulum, este estudio de 40.44 m² combina comodidad con un entorno natural privilegiado. Su diseño funcional integra cocineta, área de sala-comedor, recámara con baño completo y una terraza privada.
Es una opción accesible, rentable y perfecta para renta vacacional, segunda residencia o inversión a largo plazo en el Caribe Mexicano.
Amenidades del Desarrollo
Alberca Infinity
Palapa holística & spa
Cine y área de lectura
Terraza con asoleadero
Bar, parrilla y áreas verdes
Concierge y recepción
Gimnasio y sauna
Estacionamiento & seguridad
Estudio
$ 2,350,000 MXN
Destacado
Tulum
1 Recámara
1 Baño
40 m²
Aire acondicionadoBalcónRecámara con closetEstacionamientoZona infantilAcceso para personas con discapacidadCocina equipadaJardínGimnasioCocina integralInternetElevadorSeguridadAlbercaTerrazaCompletamente amueblado
Hace 1 semana, 6 días en - Coldwell Banker United
Centros sanitarios
A 1 km de CENTRO DE SALUD TULUM
Guardería
A 310 m de Escuela Preescolar Sac be
Ocio
A 771 m de Rotario
Ubicado en el desarrollo Menesse Condos Tulum , a pocos pasos de la Avenida Cobá (via principal a la zona hotelera y playas); este departamento en venta en Tulum Quintana Roo del tipo Estudio Loft del tipo Llave en Mano, o Lock OFF, situado en el primer nivel del desarrollo, cuenta con la siguiente distribución:
Cocineta, sala-comedor, recámara con baño completo y terraza.
Cuenta con las siguientes amenidades:
Alberca infinity, palapa holística, spa, cine, servicio concierge,
acceso privado al Mia Beach Club.
Recepción, elevador, áreas verdes, área de lectura, bar y parrilla,
terraza, asoleadero, gimansio, spa y sauna, estacionamiento, seguridad.
Ubicación estratégica:
Playa de Tulum: 10 min
Zona arqueológica: 15 min
Aeropuerto Internacional de Tulum: 40 min
Arquitectura: Diseño contemporáneo con materiales que se integran al entorno natural.
Superficie del proyecto: Aproximadamente 2,500 m²
Oportunidad de inversión
Plusvalía proyectada: +20% anual en la Riviera Maya
ROI estimado para renta vacacional: 9-11% neto anual
Aprovecha esta oportunidad única para invertir o vivir en una de las zonas con mayor plusvalía en Tulum. Contáctanos hoy mismo y agenda tu cita para conocer tu próximo hogar en el Caribe mexicano.
Hace 1 semana, 6 días en - Coldwell Banker Marimar
Centros sanitarios
A 1 km de CENTRO DE SALUD TULUM
Ocio
A 738 m de Plaza Pública Aldema Zama
Centros sanitarios
A 1 km de Hospital de Tulum
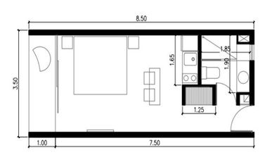
DEPARTAMENTO EN ALDEA ZAMA EN TULUM RIVIERA MAYA
HERMOSO DEPARTAMENTO EN ALDEA ZAMA LA MEJOR ZONA DE TULUM EN LA RIVIERA MAYA
1 RECAMARA
32 MTS
BALCON
3.84 MTS
TOTAL
35,17 MTS
Estudio
$ 1,650,000 MXN
Tulum, Quintana Roo
1 Recámara
1 Baño
29 m²
SeguridadEstacionamientoJardínCisternaAlbercaTerrazaCocina integralElevadorGimnasioBalcónAcceso para personas con discapacidadCocina equipadaSala polivalenteInternetAire acondicionadoCircuito cerrado de televisiónElectricidadAzoteaJacuzziAguaCalefacciónGas naturalZonas verdesVista panorámicaRecámara con closetCaseta de vigilanciaConserjeCompletamente amueblado
Hace 1 semana, 6 días en - Inmuebla Home Love
Centros sanitarios
A 1 km de CENTRO DE SALUD TULUM
Centros sanitarios
A 1 km de orthotulum
Venta de Hermoso Departamento / Studio en MUUK TULUM, QR Listo Para Habitarse Equipado y amueblado.
Precio real $2,250,000
Oportunidad de inversión $1,650,000
Estudio / Studio
Total: 28.47 m2 / 306.44 ft2
Interior: 25.13 m2 / 270.49 ft2
Terraza techada / Roofed terrace: 3.34 m2 / 35.95 ft2
DESCRIPCIÓN DE MOBILIARIO INCLUIDO
● PARRILLA VITROCERAMICA ELECTRICA / ELECTRIC GLASS-CERAMIC GRILL
● REFRIGERADOR / REFRIGERATOR
● MICROONDAS / MICROWAVE
● CAMPANA DE COCINA / KITCHEN HOOD
● 1 AIRE ACONDICIONADO MINI SPLITS / 1 AIR CONDITIONING MINI SPLITS
● COCINA INTEGRAL / KITCHEN
● CLOSET
● CALENTADOR DE AGUA / WATER HEATER
● COMEDOR CON 2 BANCOS / DINING ROOM WITH 2 BENCHES
● BASE, CABECERA Y BURÓS INTEGRADOS / BASE, HEADER AND INTEGRATED BUREAUS
● 1 COLCHÓN / 1 MATTRESS
● 1 SMART TV DE 50 PULGADAS / 1 SMART TV 50 INCHES
ÁREAS COMUNES
• ALBERCA / POOL
• AREA DE YOGA / YOGA SPACE
• GIMNASIO FUNCIONAL / FUNCTIONAL GYMNASIUM
• RECEPCION / RECEPTION
• ESTACIONAMIENTO / PARKING
• RESTAURANTE BAR / RESTAURANT BAR
AMENIDADES / AMENITIES
• CONCIERGE
• ROOM SERVICE
• WIFI
• SEGURIDAD / SECURITY
• ALBERCA / POOL
$1,850,000 se aceptan créditos
Informes: 55-6066---- / 81-2940-----
Studio
Total: 28.47 m2 / 306.44 ft2
Interior: 25.13 m2 / 270.49 ft2
Terraza techada / Roofed terrace: 3.34 m2 / 35.95 ft2
DESCRIPCIÓN DE MOBILIARIO INCLUIDO
● PARRILLA VITROCERAMICA ELECTRICA / ELECTRIC GLASS-CERAMIC GRILL
● REFRIGERADOR / REFRIGERATOR
● MICROONDAS / MICROWAVE
● CAMPANA DE COCINA / KITCHEN HOOD
● 1 AIRE ACONDICIONADO MINI SPLITS / 1 AIR CONDITIONING MINI SPLITS
● COCINA INTEGRAL / KITCHEN
● CLOSET
● CALENTADOR DE AGUA / WATER HEATER
● COMEDOR CON 2 BANCOS / DINING ROOM WITH 2 BENCHES
● BASE, CABECERA Y BURÓS INTEGRADOS / BASE, HEADER AND INTEGRATED BUREAUS
● 1 COLCHÓN / 1 MATTRESS
● 1 SMART TV DE 50 PULGADAS / 1 SMART TV 50 INCHES
ÁREAS COMUNES
• ALBERCA / POOL
• AREA DE YOGA / YOGA SPACE
• GIMNASIO FUNCIONAL / FUNCTIONAL GYMNASIUM
• RECEPCION / RECEPTION
• ESTACIONAMIENTO …
Estudio
1
$ 1,900,000 MXN
Destacado
Tulum
1 Recámara
1 Baño
39 m²
Hace 1 semana, 6 días en - Oscar Pineda Tulum Land
Centros sanitarios
A 1 km de CENTRO DE SALUD TULUM
Guardería
A 799 m de Jardín de Niños Tulum
Ocio
A 508 m de Tumben Kaa
Características:
-Planta baja
-1 recámara
-1 baño
-Superficie total: 48 m²
-Superficie construida: 34.49 m²
Una excelente oportunidad de inversión en Tulum, con ubicación privilegiada
y alto potencial de rentabilidad.
Contáctanos para más detalles o agendar una visita.
Estudio
$ 3,398,000 MXN
Villas de Tulum, Tulum
1 Recámara
1 Baño
44 m²
SeguridadEstacionamientoJardínAlbercaTerrazaCocina integralGimnasioCocina equipadaZona infantilSala polivalenteInternetAire acondicionadoElectricidadAzoteaAguaTelevisión por cableZonas verdesVista panorámicaRecámara con closetCaseta de vigilanciaParcialmente amueblado
Hace 1 semana, 6 días en - INMOBILIARIA CRUZ EURO, S.A. DE C.V.
Centros sanitarios
A 1 km de Costamed Tulum
SOLO 36, DEPARTAMENTOS, TIPO ESTUDIO
DE UNA HABITACIÓN, EXCELENTE PARA INVERSIÓN VACACIONAL.
COCINA, COMEDOR, SALA, TERRAZA Y JARDÍN.
EL FRACCIONAMIENTO CUENTA CON:
RESTAURANTE
PICINA, GYM
ÁREA DE YOGA, ELEVADORES
MIRADOR DE ESTRELLAS
FOGATERO,SPA Y COWORKING
CONTACTENOS PARA MAYOR INFORMACÓN
44 44 47 7----
Remate Bancario
Estudio
$ 1,900,000 MXN
Destacado
Tulum
1 Recámara
1 Baño
43 m²
AguaAire acondicionadoAlbercaAsadorBalcónBodegaCaseta de vigilanciaCircuito cerrado de televisiónCisternaCocina equipadaCocina integralConserjeCuarto de servicioElectricidadElevadorEstacionamientoGimnasioInternetJacuzziDespachoRecámara con closetAzoteaSala polivalenteSaunaSeguridadTelevisión por cableTerrazaVista panorámicaWifiCompletamente amueblado
Hace 1 semana, 6 días en - Maya Moon Your Dream Home
Centros sanitarios
A 1 km de CENTRO DE SALUD TULUM
Centros sanitarios
A 1 km de Hospital de Tulum
Departamentos de entrega inmediata en Aldea Zamá, Tulum
Vive o invierte en el corazón de Tulum, en un desarrollo residencial que combina diseño contemporáneo, comodidad y una ubicación estratégica dentro de la exclusiva comunidad de Aldea Zamá.
Estos departamentos de 1 recámara y 1 baño completo, con un diseño funcional y acabados de calidad, están listos para habitar o comenzar a rentar desde el primer día, convirtiéndose en una opción ideal para quienes buscan rentabilidad y tranquilidad.
Con precios desde $1,900,000 MXN, ofrecen una excelente oportunidad de inversión en una de las zonas con mayor plusvalía de la Riviera Maya.
Disfruta de amenidades pensadas para el estilo de vida actual:
✅ Alberca común para refrescarte y relajarte
✅ Terraza y solárium para disfrutar del sol de Tulum
✅ Gimnasio equipado
✅ Lobby, recepción y seguridad 24/7 que garantizan tranquilidad
✅ Estacionamiento privado
✅ Áreas verdes y jardines que conectan con la naturaleza
🌿 Invertir en Tulum y en Aldea Zamá: calidad de vida y rentabilidad
Tulum es un destino turístico internacionalmente reconocido por su belleza natural, ambiente bohemio-chic y creciente oferta gastronómica y cultural. Esta demanda constante garantiza una alta ocupación y excelentes ingresos por renta vacacional durante todo el año.
Aldea Zamá, por su parte, es el fraccionamiento residencial más consolidado de Tulum: cuenta con infraestructura moderna, calles pavimentadas, ciclovías, zonas comerciales, restaurantes y acceso directo a la playa. Aquí, la inversión no solo es segura, sino que crece año con año gracias a su ubicación estratégica y la calidad de los desarrollos.
Vivir o invertir aquí significa disfrutar de un equilibrio perfecto entre naturaleza, lujo discreto y un estilo de vida relajado, con la certeza de estar protegiendo y multiplicando tu patrimonio.
....................................................................................................................................................…
Remate Bancario
Estudio
$ 2,739,439 MXN
Destacado
Tulum, Quintana Roo
1 Recámara
1 Baño
38 m²
SeguridadEstacionamientoJardínCisternaAlbercaTerrazaCocina integralElevadorGimnasioBalcónCocina equipadaSala polivalenteInternetAire acondicionadoElectricidadJacuzziAguaTelevisión por cableAsadorZonas verdesDespachoVista panorámicaRecámara con closetCaseta de vigilanciaConserjeCompletamente amueblado
Hace 1 semana, 6 días en - Maya Moon Your Dream Home
Centros sanitarios
A 1 km de CENTRO DE SALUD TULUM
Ocio
A 746 m de Plaza Emiliano Zapata
Centros sanitarios
A 1 km de Hospital de Tulum
Buscando un lugar para escaparte en el paraíso?
Estudio de lujo con cama king, televisión de 43 pulgadas con netflix, cocinita, baño completo y terraza. Totalmente amueblado y decorado. Llave en mano.
Tiene acceso a 2 piscinas, jacuzzi, gimnasio y transporte gratuito a la zona de plata, seguridad 24/7 y recepción.
Se encuentra a tan sólo 5 minutos de la playa y a 4 minutos del centro. Mistiq es un gran, nuevo condo hotel en la misma avenidad Kukulcan, que es una de las principales que te lleva directamente a la zona de los club de playa (2.8 km del edificio a la playa).
Hay una pastelería francesa justo debajo donde puedes disfrutar de un desayuno o comida. Tienes acceso gratuito a gimnasio, piscinas, jacuzzi, asoleadero, zona de camastros, muy seguro. Y también un mercadito en el mismo lugar.
Ofrece acceso con membresía al club de playa MIA y EL CHILE, donde puedes disfrutar de la playa, hamacas, aparcamiento. Se incluye el transporte gratuito a EL CHILE club de playa.
...............................................................................................................
Looking for an escape into paradise?
Luxury Studio with King size bed, 43" TV with Netflix, kitchenette, Full luxury bathroom, private terrace.
Your stay includes access to 2 pools, Jacuzzi, gym, Free shuttle to the beach strip, 24/7 security and front desk.
We are located 5 mins drive from the beach and 4 mins to down town. MISTIQ is a big, new condo hotel residence located in "Avenida Kukulcan" which is one of the avenue that takes you straight to the beach strip (2,8 km from the building to the beach).
There is a french bakery on site where you can enjoy breakfast or lunch. Free access to the biggest private Gym in Tulum, pools, Jacuzzi, sundeck area, plenty of sunbeds, very secure.
There is also a small market on site.
When you venture to the beach you'll do it in style with exclusive membership of MIA and EL CHILE beach clubs where you can enjoy use of their beach, sun lounge…
Remate Bancario
Estudio
$ 2,300,000 MXN
Destacado
Tulum
1 Recámara
1.5 Baños
39 m²
Acceso para personas con discapacidadAguaAire acondicionadoAlbercaZona infantilAsadorCaseta de vigilanciaCocina equipadaCuarto de servicioElectricidadElevadorEstacionamientoGimnasioInternetJacuzziJardínSeguridadTerrazaWifiZonas verdesCompletamente amueblado
Hace 1 semana, 6 días en - Be Gold Inversiones - Magdalena Martinez
AGENDA TU CITA PARA VISITARLO, SE ENTREGA AMUEBLADO.
ENTREGA INMEDIATA, COMPRA/VENTA
CONTACTAME POR WHATSAPP/ O LLAMA AL 558585---- ¡NO DEJES PASAR ESTA OPORTUNIDAD, LLAMA YA!
Estudio de 39m2 completamente equipado y amueblado, listo para vacaciones o renta para aquellos inversionistas que desean una excelente oportunidad, se encuentra dentro de un desarrollo Xibalba DK que está a 5 minutos de la playa en auto y 15 minutos en bici🚲, la misma distancia y tiempo a la avenida de chetumal-cancun que se encuentra llena de bares, restaurantes para diversión en la noche, el Estudio cuenta con;
Cocina integral
Frigobar
Parrilla eléctrica de inducción
Horno de microondas
Tarja
Muebles de baño
Aire acondicionado
Sofa cama
1 Cama King size
Se encuentra en un desarrollo con 96 departamentos, el desarrollo cuenta con amenidades perfectas para estadía y descanso
Lobby con seguridad 24 hrs
Jacuzzi
Zona de Yoga
2 albercas
Gimnasio
Temazcal
Restaurante
Locales (tienda)
Elevador
Estudio
$ 6,300,000 MXN
Destacado
Centro, Playa del Carmen
1 Recámara
2 Baños
73 m²
SeguridadEstacionamientoCisternaAlbercaTerrazaCocina integralElevadorBalcónCocina equipadaAire acondicionadoCircuito cerrado de televisiónAsadorCompletamente amueblado
Hace 1 semana, 6 días en - CIDY GROUP REAL ESTATE
Centros sanitarios
A 185 m de IMSS UMF #11
Ocio
A 590 m de Parque Fundadores
Escuela
A 764 m de Escuela Maestro Manuel Acosta
Estudio PH Centro de Playa del Carmen
📏 73.07 m²
💰 $6,300,000 MX
📍 Ubicación: 25 Avenida Nte, Centro, 77710 Playa del Carmen, Q.R.
Totalmente amueblado.
RoofTop con alberca privada
Dos baños completos
Amenidades:
✅ Alberca
✅ Área Lounge
✅ Totalmente amueblado y equipado
✅ Terraza
✅ Barra y parrilla
✅ Seguridad 24/7
Estudio
$ 2,620,000 MXN
Destacado
Playacar, Playa del Carmen
1 Recámara
1 Baño
41 m²
Acceso para personas con discapacidadAguaAire acondicionadoAlbercaAsadorBalcónCircuito cerrado de televisiónCocina equipadaConserjeElectricidadElevadorEstacionamientoGimnasioInternetJacuzziRecámara con closetAzoteaSaunaTerrazaVista panorámicaWifiCompletamente amueblado
Hace 1 semana, 6 días en - GC Real estate
Centros sanitarios
A 490 m de IMSS UMF #11
Guardería
A 937 m de Jardín de niños
Escuela
A 579 m de Escuela Maestro Manuel Acosta
Ubicados en una de las zonas mas privilegiadas de Playa del Carmen, a unas cuadras de un hermoso complejo comercial con tiendas, restaurantes, cafeterías y lo mas atractivo de la 5ta avenida. Camina hacia la Playa donde encontraras la terminal de los Ferris que salen hacia Cozumel
Estos hermosos estudios se entregan completamente Equipados y Amueblados con toques cálidos y materiales naturales, haciendo de tu experiencia una lujo combinado con arte y la paz del Mar.
Excelente desarrollo para generar Ingresos o para hacerlo tu nueva casa de Playa.
Estudio
$ 4,604,590 MXN
Destacado
Centro, Playa del Carmen
1 Recámara
1 Baño
47 m²
Acceso para personas con discapacidadAguaAire acondicionadoAlbercaAsadorBalcónCaseta de vigilanciaCisternaCocina equipadaCocina integralConserjeCuarto de LimpiezaCuarto de servicioElevadorEstacionamientoGimnasioInternetDespachoAzoteaSala polivalenteSaunaSeguridadTerrazaWifiCompletamente amueblado
Hace 3 semanas, 2 días en - Coldwell Banker Riviera Maya
Centros sanitarios
A 588 m de IMSS UMF #11
Ocio
A 679 m de Parque Fundadores
Escuela
A 668 m de Niños Heroes
Belle Âme es un exclusivo desarrollo boutique ubicado en Calle 10 Norte Bis 148, Gonzalo Guerrero, en pleno corazón de Playa del Carmen. Un proyecto pensado para inversionistas y compradores que buscan una combinación real de ubicación premium, tranquilidad residencial y alto potencial de renta vacacional.
Imagina salir del lobby y, en solo unos minutos caminando, llegar a la famosa Calle 12, uno de los epicentros de vida social y entretenimiento de la ciudad. Aquí encuentras algunos de los mejores restaurantes, cafés, plazas comerciales y el reconocido Coco Bongo. Un poco más adelante aparece la icónica Quinta Avenida, con más de cuatro kilómetros llenos de tiendas, galerías, beach clubs y el ambiente cosmopolita que hace de Playa del Carmen uno de los destinos más visitados del Caribe Mexicano.
Desde Belle Âme no necesitas coche. Todo sucede alrededor de tu propiedad.
Este estudio totalmente amueblado y equipado forma parte de un edificio boutique de solo 21 unidades, con un máximo de 4 departamentos por nivel, lo que crea un ambiente mucho más privado y tranquilo comparado con grandes torres o condo-hoteles.
A diferencia de muchos estudios del centro que sacrifican espacio, Belle Âme fue diseñado con una filosofía clara: ofrecer mayor confort y proporciones inteligentes. Aquí el lujo no es solo estético, es funcional.
Todas las unidades se entregan bajo modalidad llave en mano, listas para habitar o comenzar a generar ingresos desde el primer día.
¿Qué hace especial a este estudio en Belle Âme?
• Desarrollo boutique con inventario limitado
• Estudios con mayor metraje que el promedio del mercado
• Lobby con concierge 24/7
• Rooftop con alberca, lounge y bar
• Ubicación caminable a Calle 12, Quinta Avenida y playa
• Entrega totalmente amueblada y equipada
• Ideal para renta vacacional o segunda residencia
El rooftop se convierte en el corazón social del edificio: alberca, área lounge y bar con vistas al downtown de Playa del Carmen. De día es un espacio pa…
Estudio
$ 3,519,863 MXN
Destacado
Centro, Playa del Carmen
1 Recámara
1 Baño
37 m²
Acceso para personas con discapacidadAguaAire acondicionadoAlbercaZona infantilAsadorBalcónCircuito cerrado de televisiónCisternaCocina equipadaCocina integralConserjeCuarto de LimpiezaCuarto de servicioElectricidadElevadorEstacionamientoGimnasioInternetJacuzziJardínDespachoRecámara con closetAzoteaSala polivalenteSaunaSeguridadTelevisión por cableTerrazaVista panorámicaWifiZonas verdesCompletamente amueblado
18/02/2026 en - Coldwell Banker Riviera Maya
Centros sanitarios
A 387 m de IMSS UMF #11
Escuela
A 712 m de Niños Heroes
Lugares turísticos
A 2 km de playa del carmen
BOJO es un condo-hotel de lujo en el corazón de Downtown Playa del Carmen, diseñado para que tengas una propiedad “turnkey” y, si lo deseas, la opción de operarla con administración profesional tipo hotel boutique. Es una excelente alternativa para inversionistas mexicanos que buscan entrar al mercado con ticket controlado, sin sacrificar ubicación, amenidades y demanda.
PRECIO DE ENTRADA (IDEAL PARA INVERSIÓN)
• Studios desde $3,519,863 MXN
• Tipología: Studio Simple Terrace
• 37.38 m² totales (31.31 m² interior + 6.07 m² terraza)
• 402.35 ft²
Precios y disponibilidad sujetos a cambio sin previo aviso.
7 RAZONES PARA INVERTIR EN BOJO (DOWNTOWN)
Ubicación premium en Downtown: zona walkable, con alta demanda para rentas vacacionales por cercanía a vida urbana, restaurantes, 5ª Avenida y accesos.
Concepto condo-hotel: combina residencia + operación hotelera en un mismo activo (modelo opcional según tu estrategia).
Amenidades que elevan la tarifa y las reseñas: spa completo, rooftop con infinity pool y rooftop bar, restaurante, cine, coworking, gimnasio, lounge, albercas y jacuzzis, áreas de lectura/yoga y jardín.
Rental Pool (opcional) con reglas claras: contrato de 2 años renovable, utilidad neta 75% propietario / 25% operador, reportes mensuales y pagos trimestrales.
Uso propietario si estás en el pool: 30 días al año (10 en temporada alta + 20 en baja/regular).
Alternativa a pool: programa de administración para renta vacacional con operación integral; fee operativo 25% del ingreso después de comisiones de plataformas.
Importante: existen unidades más grandes para quien busca más espacio (y para compradores canadienses/americanos), además de studios:
• Lofts doble altura 1 rec + 1.5 baños
• 2 rec + 2.5 baños con jacuzzi
• Penthouses lock-off con plunge pool (según tipología)
PREGUNTAS FRECUENTES
• ¿El rental pool es obligatorio? No. Puedes elegir entre pool hotelero o administración de renta vacacional, o manejarlo según tu estrategia.
• ¿Cómo se reparte…
Estudio
$ 2,869,950 MXN
Destacado
Gonzalo Guerrero, Playa del Carmen
1 Recámara
1 Baño
39 m²
Acceso para personas con discapacidadAguaAire acondicionadoAlbercaAsadorBalcónCisternaCocina equipadaCocina integralCuarto de servicioElectricidadElevadorEstacionamientoGimnasioInternetAzoteaSeguridadTerrazaVista panorámicaWifiSin amueblar
13/02/2026 en - Coldwell Banker Riviera Maya
Centros sanitarios
A 957 m de IMSS UMF #11
Escuela
A 677 m de Colegio de Bachilleres
Lugares turísticos
A 2 km de playa del carmen
Invierte en uno de los desarrollos con mejor relación precio–ubicación en Playa del Carmen.
Central Park II es un proyecto residencial moderno ubicado en una zona estratégica del centro, rodeado de restaurantes, cafés, supermercados y con rápida conexión a la Quinta Avenida y la playa.
Ideal tanto para renta vacacional como para renta a largo plazo.
✨ Tipologías disponibles
• Estudios
• Departamentos de 1 recámara
• Departamentos de 2 recámaras
Superficies desde aprox. 39 m² (420 ft²)
🏢 Amenidades del desarrollo
✔ Alberca
✔ Rooftop
✔ Área lounge
✔ Gimnasio
✔ Seguridad 24/7
✔ Elevador
✔ Lobby
✔ Estacionamiento
✔ Administración tipo condo-hotel (opcional)
📍 Ubicación – Centro de Playa del Carmen
Situado en una de las zonas más activas y demandadas de Playa del Carmen:
• A minutos de la Quinta Avenida
• Cercano a supermercados y servicios
• Fácil acceso a la playa
• Alta demanda para rentas vacacionales
Zona con fuerte crecimiento y excelente proyección de plusvalía.
💰 Precio
Desde $159,600 USD
Planes de pago disponibles durante construcción.
🎯 Ideal para:
• Inversionistas que buscan ingreso por renta
• Compradores de segunda residencia
• Clientes que desean entrar al mercado de Playa del Carmen con ticket accesible
• Portafolios de Airbnb / renta corta
📐 Características generales
• Cocinas integrales
• Acabados contemporáneos
• Balcones en la mayoría de unidades
• Preparación para A/C
• Entrega lista para equipar
• Régimen condominal
📞 Agenda tu asesoría privada
Te acompaño personalmente en todo el proceso: análisis de inversión, comparativos de mercado, proyección de rentas y cierre.
Contáctame para disponibilidad actualizada, planos y simulación financiera.
Estudio
$ 2,871,993 MXN
Destacado
Zazil Ha, Playa del Carmen
1 Recámara
1 Baño
38 m²
Acceso para personas con discapacidadAguaAire acondicionadoAlbercaAsadorBalcónCircuito cerrado de televisiónCisternaCocina equipadaCocina integralConserjeCuarto de LimpiezaCuarto de servicioElectricidadElevadorGimnasioDespachoRecámara con closetAzoteaSeguridadTerrazaVista panorámicaWifiCompletamente amueblado
Hace 3 semanas, 2 días en - Coldwell Banker Riviera Maya
Centros sanitarios
A 1 km de IMSS UMF #11
Escuela
A 725 m de Yits'Atil
Lugares turísticos
A 1 km de playa del carmen
Alizee Tower es un desarrollo boutique ubicado en Coco Beach, una de las zonas más consolidadas y deseadas de Playa del Carmen, a pocos minutos caminando de la playa y rodeado de restaurantes, cafés y servicios.
Departamentos totalmente amueblados y equipados (llave en mano), listos para habitar o comenzar a rentar desde el primer día. El edificio cuenta con rooftop con alberca, área social, gimnasio y lobby.
Ideal para compradores que buscan ingresos inmediatos por renta vacacional o una segunda residencia cerca del mar.
Inventario limitado en un proyecto terminado y operativo.
Solicita disponibilidad actualizada y visita privada.
Frank Ruiz
Coldwell Banker Riviera Maya
+52 984 801 ----
Estudio
$ 1,800,000 MXN
Ximbal Kiim, Playa del Carmen
1 Recámara
1 Baño
46 m²
Acceso para personas con discapacidadAguaAire acondicionadoAlbercaAsadorBalcónCircuito cerrado de televisiónCisternaCocina integralElevadorEstacionamientoGimnasioJacuzziRecámara con closetAzoteaTerrazaSin amueblar
Hace 1 semana, 3 días en - Ana Maria Martinez
Centros sanitarios
A 1 km de International Medical Center TCMS
Guardería
A 646 m de Jardín de niños
Ocio
A 661 m de Parque Ejidal
Invierte en preventa a solo 10 minutos caminando de la icónica Quinta Avenida en Playa del Carmen.
Desarrollador con más de 35 años de experiencia en el sector inmobiliario que ofrece planes de financiamiento ÚNICOS en el mercado.
Ubicación:
✔ A una calle de la Carretera Federal
✔ Frente a supermercado y atrás de parque familiar
✔ A 10 minutos caminando de la 5ª Avenida
✔ Zona con alta plusvalía y demanda constante de renta
Tipologías:
• Estudios
• Departamentos de 2 recámaras
• Estudios Penthouse con solario privado
Amenidades:
• Lobby y recepción
• Elevador
• Estacionamiento
• Gimnasio y área de yoga
• Alberca y jacuzzi
• Área lounge con asador
• Regaderas
• Rooftop con vistas al atardecer
Financiamiento directo sin bancos:
• Reserva con solo $20,000 MXN
• Planes flexibles disponibles
• Opción SIN enganche
• Plazos de hasta 10 años
• Mensualidades fijas
• Sin historial crediticio
Un esquema accesible tanto para nacionales como extranjeros.
PREVENTA:
• Promociones y descuentos exclusivos
• Precios preferenciales por lanzamiento
• Excelente oportunidad de entrada al mercado
Ideal para:
• Inversionistas que buscan esquema flexible sin bancos
• Compradores que desean asegurar precio de preventa
• Extranjeros sin acceso a crédito hipotecario tradicional
• Quien busca rentabilidad en zona céntrica
📲 Agenda tu cita por WhatsApp y solicita disponibilidad, planes de pago y promociones vigentes.
Estudio
$ 3,540,000 MXN
Luis Donaldo Colosio, Playa del Carmen
1 Recámara
1 Baño
55 m²
SeguridadEstacionamientoCisternaAlbercaTerrazaCocina integralElevadorGimnasioBalcónAcceso para personas con discapacidadCocina equipadaInternetAire acondicionadoCircuito cerrado de televisiónElectricidadAzoteaJacuzziAguaTelevisión por cableAsadorDespachoVista panorámicaRecámara con closetCaseta de vigilanciaSaunaCompletamente amueblado
Hace 1 semana, 6 días en - South Crown Real Estate
Centros sanitarios
A 1 km de Playa Med
Ocio
A 791 m de Lázaro Cárdenas
Lugares turísticos
A 1 km de playa del carmen
GRAND FIFTY CONDOS, desarrollo de departamentos de 1 y 2 recamaras desde 52 m2, hasta 68.67 m2, con espectacular vista al Mar, Lobby, oficina, gimnasio, estacionamiento, seguridad, CCVT, elevador, en el Rooftop, alberca infinity, solarium, asador, zona lounge, llave en mano.
Estudio
$ 2,690,000 MXN
Solidaridad, Quintana
1 Recámara
1 Baño
33 m²
Aire acondicionadoAlbercaZona infantilBalcónCaseta de vigilanciaCocina integralConserjeCuarto de servicioElevadorEstacionamientoGimnasioSala polivalenteCompletamente amueblado
10/02/2026 en - AV Real Estate
Centros sanitarios
A 1 km de IMSS UMF #11
Escuela
A 889 m de Viva Idioma
Lugares turísticos
A 1 km de playa del carmen
Estudio en venta amueblado gran oportunidad si lo que buscas es una inversión segura con entrega inmediata con una excelente ubicación muy cerca de la 5ta. avenida, supermercados,colegios y servicios básicos.
Superficie: 33 M2
CARACTERÍSTICAS: Cocina equipada -Baño completo -Recamara con closet y balcón.
AMENIDADES: Alberca -Gimnasio -Kids club -Jardín Zen -Estacionamiento subterráneo -Roof Garden -Cinema -Coworking -Mirador sobre rooftop -Área de restaurante en roof -Beach Club en Tulum -Recepción 24 hrs .