A 478 m de Escuela Primaria Herman Harris Fleishman
Nave/ bodega en venta en colonia México, excelente ubicación, a dos cuadras de la curva (carretera Tampico-Mante) muy cerca del Aeropuerto Internacional de Tampico.
Superficie de 1,136m2, consta de una construcción de 1,208m2, de los cuales un patio interior de 255m2, áreas de oficinas y sanitarios de 64m2, Cuenta con una oficina en planta baja de 16.27m2, 4 baños; en planta alta una oficina de 32m2.
Portón abatible a dos hojas, acceso a vehículos pesados.
VALOR DE REFERENCIA: $82,939,000.00 M.N. YA QUE EL AVALÚO SE ENCUENTRA EN PROCESO DE ACTUALIZACIÓN
Se trata de un espacio que se utilizada como rastro frigorífico y empacadora
de ganado bovino; cuenta con los siguientes elementos:
- Caseta de acceso.
- Edificio de oficinas administrativas, edificio de servicios auxiliares.
- Nave de matanza, cámaras frigoríficas, zona de corrales y básculas ganaderas.
- Incluye contenido
Superficie de terreno: 75,532.00 m2
Construcción: 6,587.60 m2
COORDENADAS MAPS: 23°43'38.31"N 98°13'3.54"W
Contacto Bancomext: 5554499000 extensión ---- y 9352
Venta de terreno de 582.80 mts2 con 540.00 de construcción que originalmente era una purificadora de agua, ideal para taller, bodega,, o inversionistas para construcción residencial, con un plus, ya que terreno tiene acceso por dos calles.
cuenta con servicios CFE, COMAPA, drenaje, cisterna.
Agenda tu cita 833 311 ----
AMADA SALDIVAR Hernández
CHRYSSAL INMOBILIARIA
¡¡¡¡ EN ALIANZA CHRYSSAL INMOBILIARIA, TE APOYAMOS PARA CRISTALIZAR TUS PROPÓSITOS DE RENTAR, VENDER O COMPRAR LA PROPIEDAD DE TU INTERÉS !!!!
Ubicado en Tampico, Estado de Tamaulipas cerca del Aeropuerto Internacional de Tampico a dos cuadras de la curva
Texas en la Colonia México.
Este predio de 1,136.00 m2 de superficie, cuenta con 1,208.00 m2 de construcción,
que consta de bodega de almacenamiento con un área de 760.00 m2, un patio interior de
255.00 m2, área de oficinas y sanitarios 63.32 m2.
Bodega de Almacenamiento:
La estructura principal de este inmueble es a base de armaduras y estructura metálica, con ejes
transversales y longitudinales a cada 5 metros.
Con un acceso directo a la bodega, el portón primordial es de tipo abatible a dos hojas, el
cual puede dar acceso a vehículos pesados.
El sistema constructivo del muro es de block en la parte baja, con una altura de 1.40 metros, celosía
en la parte alta, con una altura de 2.40 y 3.40 metros, para dar acceso a la circulación de aire y
ventilar el interior de la Bodega, y un faldón de lámina galvanizada, para tener una altura máxima
dentro de la bodega de 6.50 y 9.50 metros.
Para el alumbrado contará con 7 lámparas tipo UFO de 100 Watts.
Patio Interior, Oficinas y Servicios Sanitarios:
Este patio interior cuenta con una pileta que alberga de 10,000 litros de agua, suficiente para
abastecer el inmueble.
La amplia superficie de este patio ayudará a realizar
diferentes actividades al aire libre o estibar diversos
productos.
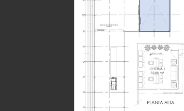
En el interior de la bodega se encuentran ubicadas en planta baja una oficina de 16.27 m2, suficiente para un mobiliario básico de trabajo y un módulo de servicios sanitarios que cuenta con 4 wc y 3 lavabos.
En planta alta se halla una oficina de 32.08 m2, con
área suficiente para un mobiliario más basto, que puede dar servicio a más de una persona.
La disponibilidad y precio de cada inmueble está sujeta a cambio sin previo aviso. El envío de esta ficha no compromete a las partes a la suscripción de ningún documento legal.
La información y medidas son aproximadas y deberán ratificarse con la documentación pertinente.En VENTA …
Este inmueble cuenta con una amplia superficie total de 1,136 m² de terreno y 1,208 m² de construcción, diseñado para cubrir necesidades de almacenamiento, operación logística y oficinas administrativas.
La bodega principal ofrece 760 m² con estructura metálica de alta resistencia y muros de block en la parte baja, complementados con celosía y faldón de lámina galvanizada para una óptima ventilación natural. Su altura interior varía de 6.50 a 9.50 metros, lo que facilita el resguardo de mercancías de gran volumen. El acceso está garantizado con un portón abatible de dos hojas, ideal para el ingreso de vehículos pesados. La nave cuenta con iluminación eficiente a través de 7 lámparas tipo UFO de 100W.
El inmueble dispone de un patio interior de 255 m², que integra una pileta con capacidad de 10,000 litros de agua, ideal para abastecer las necesidades del predio. Este espacio abierto resulta perfecto para maniobras de carga y descarga, así como para almacenamiento adicional al aire libre.
En el área administrativa, se encuentran oficinas y sanitarios con un total de 63.32 m²:
Planta baja: oficina de 16.27 m² con espacio para mobiliario básico y un módulo de sanitarios con 4 WC y 3 lavabos.
Planta alta: oficina de 32.08 m² con capacidad para varios puestos de trabajo y un área funcional más amplia.
Este inmueble representa una excelente opción para empresas que requieren espacio de almacenamiento, logística o distribución, combinando infraestructura sólida, áreas funcionales y facilidades administrativas en un mismo lugar.
Contacto - 818088----. EasyBroker ID: EB-UC9489
A 489 m de Escuela Primaria Herman Harris Fleishman
Bodega industrial en venta en Tampico con 1,136 m2 de terreno y 1,208 m2 de construcción. Consta de bodega de almacenamiento con un área de 760.00 m2, un patio interior
de 255.00 m2, área de oficinas y sanitarios 63.32 m2.
Con las siguientes características:
Estructura principal a base de armaduras y estructura metálica, con ejes transversales y longitudinales a
cada 5 metros.
Acceso directo a la bodega, con portón de tipo abatible a dos hojas, el cual puede dar acceso a vehículos pesados.
Sistema constructivo del muro de block en la parte baja, con una altura de 1.40 metros, celosía en la parte alta, con una
altura de 2.40 y 3.40 metros, para dar acceso a la circulación de aire y ventilar el interior de la bodega y un faldón de lámina
galvanizada, para tener una altura máxima
dentro de la bodega de 6.50 y 9.50 metros.
Alumbrado: 7 lámparas tipo UFO de 100 Watts
Patio interior con pileta 10,000 litros de agua, amplia superficie para actividades al aire libre y estibar productos.
Oficina en planta baja de 16.27 m2 y módulo de servicios sanitarios que cuenta con 4 WC y 3 lavabos.
Oficina en planta alta de 32.08 m2.
Entrega inmediata
*Disponibilidad y precio sujetos a cambio sin previo aviso.
a 1.5 km del Aeropuerto
Internacional de Tampico a dos
cuadras de la curva Texas en la
Colonia México. EasyBroker ID: EB-TY2016
A 399 m de Escuela Primaria Herman Harris Fleishman
Bodega de 1136m en venta en Tampico. Excelente ubicación cerca del Aeropuerto Internacional de Tampico. Ideal para almacenamiento o distribución. Moderno y funcional. Aprovecha esta oportunidad única!
Amplia bodega industrial en excelente ubicación en Tampico, Tamaulipas, ideal para empresas de logística, distribución o almacenamiento.Ubicada muy cerca del Aeropuerto Internacional de Tampico, lo que garantiza una conectividad estratégica con toda la ciudad y con rutas nacionales.La propiedad cuenta con una superficie de terreno de 1,136 m y una construcción total de 1,208 m, distribuidos de la siguiente forma:Bodega de almacenamiento: 760 m, con estructura metálica, armaduras y ejes cada 5 metros.Patio interior: 255 m, con una cisterna de 10,000 litros para abastecimiento de agua.Oficinas y sanitarios: 63.32 m, distribuidos en dos niveles:Planta baja: oficina de 16.27 m y módulo sanitario con 4 WC y 3 lavabos.Planta alta: oficina de 32.08 m con espacio para varias estaciones de trabajo.Cuenta con altura libre de 6.50 a 9.50 metros, muros de block en la parte baja (1.40 m), celosía en la parte alta (2.403.40 m) y faldón de lámina galvanizada, lo que permite una excelente ventilación natural.Tiene un portón abatible de dos hojas con acceso para vehículos pesados, y sistema de iluminación con 7 lámparas tipo UFO de 100W, lo que facilita las operaciones en cualquier horario.El patio interior permite maniobras de carga y descarga, así como espacio para estiba de productos.
Venta de Bodega en la zona el Bienestar en Reynosa Tamps, a 700 mts del Aeropuerto
Nave Industrial1,537 m2 de terreno1,770.00 m2 de construcciónlos m2 de construcción es mas IVATerreno en esquinaa 700 mts del aeropuertocerca de zona de bodegas industrialesprecio negociableexcelente ubicaciónDisponibilidad y precio sujeto a cambio sin previo aviso.
A 476 m de Escuela Primaria Herman Harris Fleishman
Bodega en venta. Ubicada en Tampico ,Tamaulipas en la col Mexico a 1,5 km del aeropuerto de Tampico. la propiedad tiene un terreno de 1,136m2 se superficie y 1,208 m2 de construcción. consta de bodega de almacenamiento de 760m2 con un patio interior de 255m2, área de oficina con sanitarios de 63.32m2. La estructura principal es de armadura y estructura metálica con ejes transversales y longitudinales a cada 5 mts. El portón de entrada es abatible de dos hojas, con acceso directo a la bodega a vehículos pesados. El sistema de construcción del muero es block en la parte baja con altura de 1.4mts, celosía en la parte alta, con una altura de 2.40 a 3.40 mts para dar acceso a la circulación de aire y ventilar el interior dela bodega y un faldón de lamina galvanizada para tener altura máxima dentro dela bodega de 6.50 a 9.50mts. cuanta con alumbrado de 7 lamparas tipo UFO de 100 watts. Id Gvia: 114976. EasyBroker ID: EB-RY1751
Bodega Tampico es una amplia propiedad de 1136m2 de terreno con 760 metros de frente y 255 metros de fondo, ideal para uso industrial. Cuenta con una construcción de 1208 metros distribuidos en una sola planta, con 4 medios baños para mayor comodidad. La estructura principal es de armaduras y estructura metálica, con ejes transversales y longitudinales cada 5 metros, lo que garantiza su solidez y durabilidad. Además, cuenta con 7 lámparas tipo UFO de 100 watts para un excelente alumbrado. ¡No pierdas la oportunidad de adquirir esta propiedad única! Id Gvia: 118603. EasyBroker ID: EB-UI6818
Valor Oportunidad
$ 2,335,000.00
Valor Comercial
$ 3 ,187,275
827.01 m2 de construccion
779 m2 de terreno
Amplia bodega para usos multiples anteriormente usada como almacen de carnes incluye oficinas.
Haz tu mejor oferta sobre el valor de venta y cómpralo a un super precio.
Previa cita para conocerlo; posesión inmediata. Se aceptan todos los créditos.
Documentación en regla. Sin anticipos, sin apartados. No se aceptan pagos en línea.
Los inmuebles están sujetos a cambio de precio, sin previo aviso. Todo el proceso ante notario público.
Tenemos inmuebles en venta y renta a nivel nacional. EasyBroker ID: EB-PD8207
-Valor Oportunidad
$ 9,000,000.00
-Valor Comercial
$ 12 ,285,000
Superficie del terreno: 3,251 m2.
- Superficie total de la bodega: 1,419 m2.
- Uso de suelo: Industrial.
- oficinas privadas.
- Baños
- Servicios (Agua, Luz, drenaje)
Haz tu mejor oferta sobre el valor de venta
Los inmuebles están sujetos a cambio de precio, sin previo aviso. Todo el proceso ante notario publico. No se aceptan pagos en linea. EasyBroker ID: EB-OK1404
En venta amplia bodega industrial en una de las mejores ubicaciones de Ciudad Victoria, sobre el Libramiento Naciones Unidas. Esta propiedad es perfecta tanto para empresas en expansión como para inversores que buscan una oportunidad en una de las zonas de mayor crecimiento industrial de la región. Características Principales: Terreno: 5,194 m2, ideal para maniobras, estacionamiento y almacenamiento al aire libre. Nave Industrial: 3,021 m2; de construcción que incluyen oficinas y áreas de trabajo, proporcionando flexibilidad para adaptar el espacio según las necesidades operativas. El Libramiento Naciones Unidas es un punto clave para la actividad industrial de Ciudad Victoria, con acceso rápido a las principales carreteras del norte y centro del país. Esta propiedad ofrece una oportunidad única para expandir operaciones o realizar una inversión sólida, con alto potencial de crecimiento y rentabilidad en el mercado industrial. ¡Contáctanos para más detalles o para programar una visita
sobre carretera Reynosa- Mty, a 15 min. del puente internacional anzalduas, 15 min. plaza periférico, salida rapida a Reynosa, Rio bravo y Matamoros (7)
A 476 m de Escuela Primaria Herman Harris Fleishman
Bodega Industrial en Renta / Venta ? Espacio Estrat?gico para tu Negocio en TampicoEste inmueble de 1,136 m? de superficie y 1,208 m? de construcci?n est? dise?ado para cubrir las m?s altas exigencias de operaci?n industrial, almacenamiento y log?stica comercial. Infraestructura destacada ? Bodega de 760 m? con estructura met?lica robusta y altura m?xima de hasta 9.50 m, ideal para optimizar el almacenamiento vertical. ? Patio interior de 255 m? con pileta de 10,000 litros de agua, perfecto para maniobras, actividades al aire libre o estiba de mercanc?a. Oficinas ejecutivas y operativas: ? Planta baja: oficina de 16.27 m? y m?dulo de sanitarios (4 WC y 3 lavabos). ? Planta alta: oficina de 32.08 m?, adecuada para atenci?n administrativa y gerencial. ? Port?n abatible a dos hojas con acceso directo a la bodega, apto para entrada de veh?culos pesados. ? Muros ventilados con celos?a y fald?n de l?mina galvanizada que permiten una circulaci?n de aire constante y natural. ? Iluminac
?Excelente oportunidad! Propiedad vers?til con amplios espacios y m?ltiples ?reas funcionales Esta propiedad destaca por su amplitud, distribuci?n inteligente y m?ltiples ?reas que se adaptan a diversos usos. Ideal para oficinas, negocios o incluso para uso residencial con gran comodidad. Planta baja ? Amplia bodega perfecta para almacenamiento o acondicionar seg?n tus necesidades ? Gran ?rea de usos m?ltiples, ideal para reuniones, sala de exhibici?n o trabajo en equipo ? ?rea de asador para disfrutar al aire libre ? Cuarto de servicio con ba?o completo ? Dos espaciosas ?reas que pueden funcionar como recepci?n, oficinas o salas de atenci?n Planta alta ? Dos habitaciones: ? La principal, muy amplia, con ba?o completo y cl?set ? Segunda rec?mara con cl?set y acceso a ba?o completo compartido Esta propiedad es una opci?n excelente por su funcionalidad y espacios generosos. ?Lista para adaptarse a tu proyecto o estilo de vida!.Publicado por 3A inmobiliaria en universoinmuebles
22/07/2025 en Tuportalonline - Housebook Real Estate
Escuela
A 734 m de Cetis 22
Escuela
A 489 m de Escuela Primaria Herman Harris Fleishman
Este predio de 1,136.00 m2 de superficie, cuenta con 1,208.00 m2 de construcci?n, que consta de bodega de almacenamiento con un ?rea de 760.00 m2, un patio interior de 255.00 m2, ?rea de oficinas y sanitarios 63.32 m2.Bodega de Almacenamiento:La estructura principal de este inmueble es a base de armaduras y estructura met?lica, con ejes transversales y longitudinales a cada 5 metros. Con un acceso directo a la bodega, el port?n primordial es de tipo abatible a dos hojas, el cual puede dar acceso a veh?culos pesados.El sistema constructivo del muro es de block en la parte baja, con una altura de 1.40 metros, celos?a en la parte alta, con una altura de 2.40 y 3.40 metros, para dar acceso a la circulaci?n de aire y ventilar el interior de la Bodega, y un fald?n de l?mina galvanizada, para tener una altura m?xima dentro de la bodega de 6.50 y 9.50 metros. Para el alumbrado contar? con 7 l?mparas tipo UFO de 100 Watts.Patio Interior, Oficinas y Servicios Sanitarios:Este patio interior cuent
A 476 m de Escuela Primaria Herman Harris Fleishman
Bodega Industrial en Renta / Venta ? Espacio Estrat?gico para tu Negocio en TampicoEste inmueble de 1,136 m? de superficie y 1,208 m? de construcci?n est? dise?ado para cubrir las m?s altas exigencias de operaci?n industrial, almacenamiento y log?stica comercial. Infraestructura destacada ? Bodega de 760 m? con estructura met?lica robusta y altura m?xima de hasta 9.50 m, ideal para optimizar el almacenamiento vertical. ? Patio interior de 255 m? con pileta de 10,000 litros de agua, perfecto para maniobras, actividades al aire libre o estiba de mercanc?a. Oficinas ejecutivas y operativas: ? Planta baja: oficina de 16.27 m? y m?dulo de sanitarios (4 WC y 3 lavabos). ? Planta alta: oficina de 32.08 m?, adecuada para atenci?n administrativa y gerencial. ? Port?n abatible a dos hojas con acceso directo a la bodega, apto para entrada de veh?culos pesados. ? Muros ventilados con celos?a y fald?n de l?mina galvanizada que permiten una circulaci?n de aire constante y natural. ? Iluminac
14/09/2025 en universoInmuebles - CUVIER BIENES RAICES
Hospital
A 504 m de BSN Medical S.A
?EXCELENTE BODEGA EN VENTA! Oportunidad para inversionistas o empresas que buscan espacio funcional en una zona altamente comercial, con acceso r?pido a tan solo 15 minutos del Puerto Industrial. Precio: $8,000,000 MXNTerreno: 1000 m?.Construcci?n: 150 m?.Caracter?sticas Principales:Oficinas listas para ser utilizadas.?rea de ventas.?rea de caseta.?rea de comedor.Sanitarios para ?rea administrativa.Circuito cerrado.Puertas automatizadas.Patio de maniobras de 850 m?.: cuenta con c?maras, port?n de acceso automatizado y ba?o para trabajadores con regaderas.Techo curvo (domo): lamina calibre 20, 25 metros de ancho, altura maxima de 13.5 metros y resistencia: 2.50 /300Cuenta con carta posesi?n.Ubicada en una zona con gran flujo vehicular y excelente conectividad, esta propiedad es perfecta para centros de distribuci?n, almacenes, talleres, o desarrollo comercial. ?Gran inversi?n en una ubicaci?n clave!Contrato adhesi?n 5466-2022*Los precios y condiciones est?n sujetos a cambios sin previo
A 476 m de Escuela Primaria Herman Harris Fleishman
Este predio de 1,136.00 m2 de superficie, cuenta con 1,208.00 m2 de construcci?n. Consta de bodega de almacenamiento con un ?rea de 760.00 m2. -Un patio interior de 255.00 m2. -?rea de oficinas y sanitarios 63.32 m2. BODEGA DE ALMACENAMIENTO La estructura principal de este inmueble es a base de armaduras y estructura met?lica, con ejes transversales y longitudinales a cada 5 metros. Con un acceso directo a la bodega, el port?n primordial es de tipo abatible a dos hojas, el cual puede dar acceso a veh?culos pesados. El sistema constructivo del muro es de block en la parte baja, altura de 1.40 metros. Celos?a en la parte alta, con una altura de 2.40 y 3.40 metros, para dar acceso a la circulaci?n de aire y ventilar el interior de la Bodega, y un fald?n de l?mina galvanizada, para tener una altura m?xima dentro de la bodega de 6.50 y 9.50 metros. Para el alumbrado contar? con 7 l?mparas tipo UFO de 100 Watts. Patio Interior, Oficinas y Servicios Sanitarios. Este patio interior cuenta con
?Excelente oportunidad! Propiedad vers?til con amplios espacios y m?ltiples ?reas funcionales Esta propiedad destaca por su amplitud, distribuci?n inteligente y m?ltiples ?reas que se adaptan a diversos usos. Ideal para oficinas, negocios o incluso para uso residencial con gran comodidad. Planta baja ? Amplia bodega perfecta para almacenamiento o acondicionar seg?n tus necesidades ? Gran ?rea de usos m?ltiples, ideal para reuniones, sala de exhibici?n o trabajo en equipo ? ?rea de asador para disfrutar al aire libre ? Cuarto de servicio con ba?o completo ? Dos espaciosas ?reas que pueden funcionar como recepci?n, oficinas o salas de atenci?n Planta alta ? Dos habitaciones: ? La principal, muy amplia, con ba?o completo y cl?set ? Segunda rec?mara con cl?set y acceso a ba?o completo compartido Esta propiedad es una opci?n excelente por su funcionalidad y espacios generosos. ?Lista para adaptarse a tu proyecto o estilo de vida!.Publicado por 3A inmobiliaria a traves de Inmomap en
14/09/2025 en Tuportalonline - CUVIER BIENES RAICES
Hospital
A 504 m de BSN Medical S.A
?EXCELENTE BODEGA EN VENTA! Oportunidad para inversionistas o empresas que buscan espacio funcional en una zona altamente comercial, con acceso r?pido a tan solo 15 minutos del Puerto Industrial. Precio: $8,000,000 MXNTerreno: 1000 m?.Construcci?n: 150 m?.Caracter?sticas Principales:Oficinas listas para ser utilizadas.?rea de ventas.?rea de caseta.?rea de comedor.Sanitarios para ?rea administrativa.Circuito cerrado.Puertas automatizadas.Patio de maniobras de 850 m?.: cuenta con c?maras, port?n de acceso automatizado y ba?o para trabajadores con regaderas.Techo curvo (domo): lamina calibre 20, 25 metros de ancho, altura maxima de 13.5 metros y resistencia: 2.50 /300Cuenta con carta posesi?n.Ubicada en una zona con gran flujo vehicular y excelente conectividad, esta propiedad es perfecta para centros de distribuci?n, almacenes, talleres, o desarrollo comercial. ?Gran inversi?n en una ubicaci?n clave!Contrato adhesi?n 5466-2022*Los precios y condiciones est?n sujetos a cambios sin previo
28/12/2024 en NocNok - MEDIOS CONSULTORIA INMOBILIARIA
Ocio
A 505 m de Plaza Almaguer
EXCELENTE BODEGA EN LIQUIDACION, COL. BIENESTAR, ZONA INDUSTRIAL DE REYNOSA, A SOLO UNAS CUADRAS DE PLAZA AEROPUERTO Y PRINCIPALES ACCESOS DE LA CIUDAD, UBICACIÓN INCOMPARABLE, PRECIO DE OPORTUNIDAD NEGOCIABLE. COL. BIENESTAR, REYNOSA, TAMPS $4,500,000MXN PRECIO ESPECIAL DESCRIPCION: TERRENO 1,537 M2 CONSTRUCCION 1,770 M2 BODEGA UBICADA EN ESQUINA DOBLE ACCESO SOBRE CALLES A MINUTOS DE PRINCIPALES ACCESOS AREA DE MANIOBRAS, AREA DE OFICINAS, AREA DE PRODUCCION AREA DE BAÑOS, BODEGA DESARROLLADA EN DOS NIVELES PRECIO NEGOCIABLE / OPORTUNIDAD DE INVERSION INFORMACION Y CITAS AL 22,15,31.04.56 Y 222,535.43.07 -Consulta disponibilidad, cambios sin previo aviso
14/09/2025 en Tuportalonline - CUVIER BIENES RAICES
Escuela
A 261 m de Escuela Primaria Prof. Patrocinio Huerta
?EXCELENTE BODEGA EN VENTA! Ubicaci?n: Ejido Francisco Medrano en la ciudad de Altamira.Precio: $18,000,000 MXN.Caracter?sticas:Superficie: 15,000 m?.Bodega: 50 x 30 metros.Con acceso a agua y electricidad, es un espacio perfecto para actividades industriales, comerciales o de almacenamiento.La propiedad cuenta con un amplio terreno, ideal para almacenamiento de mercanc?as, equipos o patio de maniobras.Esta bodega ofrece un espacio flexible y bien equipado para satisfacer las necesidades de tu empresa. ?No pierdas esta oportunidad y cont?ctanos para m?s informaci?n o agendar una visita! Contrato adhesi?n 5466-2022*Los precios y condiciones est?n sujetos a cambios sin previo aviso* Los gastos notariales e impuestos de adquisici?n de la propiedad no est?n incluidos en el precio establecido en esta publicaci?n.?Ven a conocerla! Ll?manos al 833 130 93 50..Publicado por CUVIER BIENES RAICES a traves de Inmomap en TuPortalOnline
Hace 1 día, 22 horas en Tuportalonline - p360 ? naves industriales ? p360.mx
Escuela
A 948 m de Lic. Benito Juárez
Guardería
A 413 m de Jardin de Niñps Estela Cavazos Gonzalez
DISPONIBLE PARA ENTREGA EN: OCTUBRE DE 2022 NAVE EN CONSTRUCCION O CONSTRUIDA: CONTRUIDA............................ SUBDIVIDIBLE: SUJETO AL USO QUE SE LE DARA A LA NAVE, DEFINICION DE ESPACIO - LAYOUT, ANDENES, PLAZO DE CONTRATO............................. SUPERFICIE DE OFICINAS: 6,400 FT2 595 M2............................ ALTURA LIBRE 20 FT 6.1 M............................ ANDENES: 2 RAMPAS: 3............................ KVA. ENERGIA ELECTRICA: 1000 KVA SISTEMA DE VENTILACION EN AREA DE BODEGA: NO ESPECIFICADO SISTEMA CONTRA INCENDIO: NO ESPECIFICADO............................ SERVICIOS PUBLICOS: 1 CFE: KVA. KW. CAPACIDAD USO INDUSTRIAL 2 AGUA Y DRENAJE. CAPACIDAD INDUSTRIAL 3 GAS NATURAL. POR EVALUAR CAPACIDAD 4 OTROS SERVICIOS: TRANSPORTE PUBLICO, COMUNICACIONES Y OTROS..................
18/05/2025 en Tuportalonline - ASESORES INMBILIARIOSS
Ocio
A 227 m de campo iglesiade jesucristo
Ocio
A 260 m de Campo Enrique Cardenaz
(LPTV2520) Venta de Terreno y Local Comercial sobre Av. Monterrey Col Enrique C?rdenas Gonz?lez En Zona de alto flujo vehicular y peatonal ubicada en la Av. Monterrey cuenta con un local comercial en planta baja 4 por 19 metros y en segundo piso oficinas, en el patio cuenta con estructura met?lica abierta, con techo alto de l?mina, con firme de concreto en excelentes condiciones; ba?os en oficinas y ba?os exteriores.Adem?s al fondo del terreno construcci?n de una planta de 100 M2. Nota.- La propiedad se compone de dos fracciones en dos escrituras distintas a nombre del mismo propietario, solo se venden juntas al mismo comprador. Clave de la propiedad LPTC2520 informes en el 833 137 0065.Publicado por ASESORES INMBILIARIOSS a traves de Inmomap en TuPortalOnline
14/09/2025 en universoInmuebles - CUVIER BIENES RAICES
Escuela
A 261 m de Escuela Primaria Prof. Patrocinio Huerta
?EXCELENTE BODEGA EN VENTA! Ubicaci?n: Ejido Francisco Medrano en la ciudad de Altamira.Precio: $18,000,000 MXN.Caracter?sticas:Superficie: 15,000 m?.Bodega: 50 x 30 metros.Con acceso a agua y electricidad, es un espacio perfecto para actividades industriales, comerciales o de almacenamiento.La propiedad cuenta con un amplio terreno, ideal para almacenamiento de mercanc?as, equipos o patio de maniobras.Esta bodega ofrece un espacio flexible y bien equipado para satisfacer las necesidades de tu empresa. ?No pierdas esta oportunidad y cont?ctanos para m?s informaci?n o agendar una visita! Contrato adhesi?n 5466-2022*Los precios y condiciones est?n sujetos a cambios sin previo aviso* Los gastos notariales e impuestos de adquisici?n de la propiedad no est?n incluidos en el precio establecido en esta publicaci?n.?Ven a conocerla! Ll?manos al 833 130 93 50..Publicado por CUVIER BIENES RAICES en universoinmuebles
20/05/2025 en universoInmuebles - ASESORES INMBILIARIOSS
Ocio
A 227 m de campo iglesiade jesucristo
Ocio
A 260 m de Campo Enrique Cardenaz
(LPTV2520) Venta de Terreno y Local Comercial sobre Av. Monterrey Col Enrique C?rdenas Gonz?lez En Zona de alto flujo vehicular y peatonal ubicada en la Av. Monterrey cuenta con un local comercial en planta baja 4 por 19 metros y en segundo piso oficinas, en el patio cuenta con estructura met?lica abierta, con techo alto de l?mina, con firme de concreto en excelentes condiciones; ba?os en oficinas y ba?os exteriores.Adem?s al fondo del terreno construcci?n de una planta de 100 M2. Nota.- La propiedad se compone de dos fracciones en dos escrituras distintas a nombre del mismo propietario, solo se venden juntas al mismo comprador. Clave de la propiedad LPTC2520 informes en el 833 137 0065.Publicado por ASESORES INMBILIARIOSS en universoinmuebles
VENTA DE BODEGA COMERCIAL CON OFICINAS EN LA RETAMA TAMPICO-ALTAMIRA ?Bodega Industrial/Comercial Estrat?gicamente Ubicada en Venta!Ubicaci?n: Zona La Retama, en los l?mites de Tampico y Altamira. ?Conectividad inigualable con el coraz?n del corredor industrial y el Puerto de Altamira! Ideal para empresas que buscan proximidad y f?cil acceso a sus operaciones.Conectividad Total: Disfrute de una ubicaci?n privilegiada con acceso r?pido y sencillo a las principales v?as de comunicaci?n y a las empresas clave de la regi?n.Caracter?sticas Destacadas:? Terreno: 4,166.66 m? de superficie total.? Construcci?n: 1,409.16 m? de ?reas construidas, dise?adas para diversas operaciones industriales o comerciales.? Nave Industrial: Espaciosa bodega con estructura met?lica y cubierta de l?mina industrial, perfecta para almacenamiento, producci?n o log?stica.? Oficinas en Dos Niveles: ?reas de oficinas funcionales, tanto interiores como exteriores a la bodega principal, ideales para administraci?n y ge