A 1 km de Tribunal Federal de Justicia Fiscal y Administrativa
Centros sanitarios
A 1 km de IMSS Hospital General de Zona 1-A Dr. Rodolfo Antonio de Mucha Macias "Venados"
Hospital
A 715 m de clinica 28 imss
Excelente edificio de oficinas en renta en Del Valle. Av División del Norte. Cuenta con una superficie de 3100 m2c, 8 niveles, elevadores, lobby, estacionamientos para 29 autos. Rent $350 mn x m2c a tratar
Edificio
$ 210,000 MXN/mes
Destacado
Del Valle Norte, Benito Juárez
4 Baños
AguaCircuito cerrado de televisiónCisternaCuarto de LimpiezaElectricidadInternetAzoteaTelevisión por cableTerrazaWifi
17/12/2025 en - City Inmobiliaria
Oficinas gubernamentales
A 1 km de Tribunal Federal de Justicia Fiscal y Administrativa
Centros sanitarios
A 935 m de Clinica CIME
Hospital
A 940 m de clinica 28 imss
Excelente edificio en renta, recién terminado listo para estrenar, con acabados en laminados tipo madera, luminarias de bajo consumo, ideal para oficinas, local comercial, consultorios, clínicas, laboratorios, escuela, restaurante, muy cerca de estaciones del metro y Metrobús, a 3 cuadras de Av Insurgentes en la colonia del valle, bancos restaurantes, estacionamientos públicos. No pierdas esta gran oportunidad! Que no te lo ganen... visítalo!!... *Contamos con servicio de City Mudanzas. *Gaby Tin.
A 940 m de Tribunal Federal de Justicia Fiscal y Administrativa
Centros sanitarios
A 489 m de Clinica CIME
Hospital
A 581 m de clinica 28 imss
Renta de oficina en excelente zona wtc cdmx piso 39 cuenta con 251.52 mts amueblada recepcion , cuenta con 6 cubiculos privados con vista espectacular sala de juntas con tv cocineta con refirgerador horno de microondas vajilla la oficinia del director general cuenta con baño completo privado esciturao de juntas sala de juntas, baños, 4 estacionamientos, cerca de plazas comerciales, restaurantes, metrobus, renta dlls 4,000.00 + $25,000.00 de mtto.
Edificio
$ 65,000 MXN/mes
Ciudad de Los Deportes, Benito Juárez
390 m²
Sin amueblar
08/12/2025 en - Alfa Inmobiliaria Elite
Oficinas gubernamentales
A 607 m de Tribunal Federal de Justicia Fiscal y Administrativa
Centros sanitarios
A 1 km de Clínica Mexicana de Autismo y Alteraciones del Desarrollo
Hospital
A 1 km de clinica 28 imss
Edificio en Renta - Ciudad de los Deportes, Benito Juárez, CDMX
Excelente oportunidad para oficinas, despachos o centro operativo.
Ubicado en una de las zonas más accesibles de la CDMX, frente a la Plaza de Toros México, en la colonia Ciudad de los Deportes, alcaldía Benito Juárez.
390 m² de construcción
9 metros de frente
Distribución funcional en 3 niveles
Planta Baja:
Local o espacio para estacionamientos
Primer Piso:
Oficina con baño
Oficina con sala de juntas y privado
Oficina adicional
Baño completo
Segundo Piso:
Privado con baño
Privado con vista exterior
Oficina (actualmente usada como bodega)
Baño completo
Terraza ideal para descanso o reuniones informales
Ideal para empresas, consultorios, despachos profesionales o centros educativos.
Excelente ubicación con gran flujo vehicular y peatonal.
IContáctanos para agendar una visita y conocer tu próximo espacio de trabajo!
Edificio
$ 500,000 MXN/mes
Insurgentes San Borja, Benito Juárez
1,200 m²
Sin amueblar
Hace 2 semanas, 1 día en - Alfa Inmobiliaria Vita Plus
Oficinas gubernamentales
A 453 m de Tribunal Federal de Justicia Fiscal y Administrativa
Centros sanitarios
A 1 km de Clínica Mexicana de Autismo y Alteraciones del Desarrollo
Hospital
A 772 m de clinica 28 imss
Edificio de Oficinas en renta de 1,200 m2. Cuenta con 12 privados, de 2.80 metros, estacionamiento para 48 autos, escaleras de servicio y de emergencia, 12 baños. Servicios de: agua, luz, drenaje, hidrantes, extintores y planta de luz. Uso de suelo oficinas y comercial.
Cerca de metro bus, transporte publico, escuelas, restaurantes, plazas comerciales, Plaza de toros.
Remate Bancario
Edificio
$ 760,000 MXN/mes
8 de Agosto, Benito Juárez
30 Recámaras
30 Baños
Acceso para personas con discapacidadAguaAire acondicionadoBodegaCircuito cerrado de televisiónElectricidadElevadorEstacionamientoGas naturalInternetJardínSeguridadTerrazaWifiBalcónCaseta de vigilanciaCocina equipadaCocina integralCuarto de LimpiezaCuarto de servicioDespachoRecámara con closetTelevisión por cableVista panorámicaZonas verdes
05/12/2025 en - Profesionales Inmobiliarios - Jorge Sanchez
Oficinas gubernamentales
A 1 km de Tribunal Federal de Justicia Fiscal y Administrativa
Centros sanitarios
A 1 km de Clínica Mexicana de Autismo y Alteraciones del Desarrollo
Hospital
A 916 m de Hospital Escandón
EXELENTE OPORTUNIDAD DE PODER RENTAR ESTE EDIFICIO EN UNA DE LAS MEJORES ZONAS DE LA CIUDAD.
CUENTA CON:
-ELEVADOR
-TERRAZA Y COMEDOR
-51 ESTACIONAMIENTOS
-USO DE SUELO PARA OFICINAS
-ALTURA DE 2.90 METROS
-8 NIVELES
-TERRENO DE 661.41 m2
-CONSTRUCCION DE: 2800 m2
CUENTA CON 1900 m2 DISPONIBLES EN $ 400 MXN m2
¿TE INTERESA RENTAR ESTE INMUEBLE?
Contacta conmigo para obtener más información y aprovechar esta gran oportunidad. ¡No dejes pasar esta oportunidad de invertir en una propiedad con gran potencial de crecimiento!
Edificio
$ 80,000 MXN/mes
Destacado
San Rafael, Cuauhtémoc
6 Baños
AguaBodegaCircuito cerrado de televisiónCocina integralElectricidadEstacionamientoInternetDespachoTerrazaVista panorámica
13/01/2026 en - MANUEL NOVODZELSKY 4
Aeropuerto
A 8 km de Aeropuerto Internacional de la Ciudad de México - AICM
Oficinas gubernamentales
A 1 km de Banco De Mexico
Centros sanitarios
A 953 m de IMSS Conjunto Colonia
RENTA DE EDIFICIO IDEAL PARA OFICINAS EN LA COL. SAN RAFAEL.
RENTA $80,000 MIL PESOS MENSUALES.
CUENTA CON: 12 CAJONES DE ESTACIONAMIENTO
6 BAÑOS
6 BODEGAS
CADA NIVEL MIDE 90M2
PANALES SOLARES
SISTEMA DE CAPTACIÓN DE AGUA
TERRAZA CON VISTA PANORAMICA
COCINETA EQUIPADA
DOBLE ACCESO
SISTEMA DE CAMARAS DE VIGILANCIA
CABLEADO DE RED Y TELEFONIA
CONMUTADOR
BODEGA EXTRA EN EL SOTANO DE 80 M2
INFORMES Y CITAS AL 722635----
Edificio
$ 2,334,000 MXN/mes
Escandón Ii Sección, Miguel Hidalgo
44 Baños
EstacionamientoElevadorDespacho
13/03/2025 en - YEM Grupo Inmobiliario
Oficinas gubernamentales
A 1 km de Tribunal Federal de Justicia Fiscal y Administrativa
Centros sanitarios
A 1 km de Clinica CIME
Hospital
A 1 km de Carlos McGregor Sánchez
Edificio Benjamín F. – Renta Completa en Escandón, CDMX
Ubicado en Av. Benjamín Franklin 132, en la alcaldía Miguel Hidalgo, este edificio de oficinas es ideal para empresas que buscan un espacio amplio y bien ubicado.
Renta por m²: $400.00 MXN (negociable)
Superficie total disponible: 5,835.00 m²
Construcción total: 8,065.00 m²
Características:
Altura: 2.60 m por nivel
Pisos: 4
Estacionamiento: 56 cajones
Elevador: 1 (capacidad para 8 personas)
Uso de suelo: Oficinas
Una oportunidad única de alquilar todo el edificio, ubicado en una de las zonas más demandadas de la ciudad. ¡Contáctanos para más detalles y agendar una visita!
A 1 km de Hospital Psiquiátrico Fray Bernardino Álvarez
Dirección: Anillo Periférico 4826, Col. Coapa, Tlalpan, CDMX. ¡Tu negocio merece estar aquí!
Superficie disponible: 1,900 m²
Renta por m²: $400.00
Características que destacan:
8 pisos con altura de 2.90 metros
51 lugares de estacionamiento
Elevador con capacidad para 6 personas
Terraza y comedor para mayor comodidad
Uso de suelo: Oficinas
¡El lugar ideal para que tu empresa crezca!
Edificio
$ 1,341,200 MXN/mes
Centro, Cuauhtémoc
8 Recámaras
8 Baños
Acceso para personas con discapacidadElevadorEstacionamiento
08/12/2025 en - KM Real Estate
Aeropuerto
A 8 km de Aeropuerto Internacional de la Ciudad de México - AICM
Oficinas gubernamentales
A 1 km de Banco De Mexico
Centros sanitarios
A 1 km de Hospital Medex
Magnifico edificio de oficinas ubicado cerca de Paseo de la Reforma. Cuenta con 8 niveles, 2 elevadores, estacionamientos, acceso para discapacitados, hidrantes, 3353 m2c de área rentable. Ideal para oficinas de gobierno. Renta $400 mn x m2c, negociable!
Hace 2 semanas, 6 días en - ELIZABETH SEGUNDO NEGOCIOS INMOBILIARIOS
Oficinas gubernamentales
A 1 km de Tribunal Federal de Justicia Fiscal y Administrativa
Centros sanitarios
A 1 km de Clinica CIME
Hospital
A 1 km de Hospital Escandón
Edificio Corporativo Premium en Renta – 5,835 m²
Av. Benjamín Franklin, Escandón, Miguel Hidalgo | CDMX
Activo inmobiliario de alto perfil ubicado sobre Av. Benjamín Franklin, una de las vialidades más consolidadas y estratégicas de la CDMX. Ideal para empresas corporativas, operadores institucionales o inversionistas que buscan un inmueble con infraestructura y ubicación probada.
Ficha técnica:
Superficie construida: 5,835 m²
Niveles: 4
Renta mensual: $2,334,000 MXN
Uso de suelo: Corporativo / Comercial
Estado de conservación: Excelente
Terreno de 1,879.00 m2
Construcción de 8,065.00 m2
Disponibilidad: 5,835.00 m2
Renta: $400.00 m2
Altura: Altura libre de 2.60 metros.
Estacionamiento: 56 cajones disponibles.
Elevadores: 1 elevador con capacidad para 8 personas.
Infraestructura:
Estacionamiento privado
Aire acondicionado
Sistema contra incendios con hidrantes
Planta de energía de respaldo
Accesos controlados
Ventajas estratégicas:
Frente a avenida principal con alta visibilidad corporativa
Conectividad inmediata a Patriotismo, Viaducto y Condesa
Zona con alta demanda para oficinas AAA, sector salud y educación
Configuración adaptable para multiusuario o single tenant
Activo ideal para empresas ancla o inversionistas que buscan posicionamiento y rentabilidad en una zona consolidada.
Edificio
$ 758,000 MXN/mes
Destacado
Guadalupe Tlalpan, Tlalpan
16 Baños
AguaEstacionamientoAzoteaSeguridadWifi
Hace 2 semanas, 6 días en - ELIZABETH SEGUNDO NEGOCIOS INMOBILIARIOS
Oficinas gubernamentales
A 2 km de Instituto Nacional Electoral
Centros sanitarios
A 934 m de Instituto Nacional de Ciencias Médicas y Nutrición Salvador Zubirán
Hospital
A 1 km de Hospital Psiquiátrico Fray Bernardino Álvarez
Descubre un edificio corporativo de alto perfil en el corazón de Tlalpan, diseñado para empresas AAA y inversionistas que buscan ubicación estratégica, infraestructura de primer nivel y espacios listos para operar. Con 1,900 m² distribuidos en 8 pisos, este inmueble combina funcionalidad, confort y visibilidad corporativa en una de las zonas más demandadas de la CDMX.
Cada piso cuenta con altura libre de 2.90 metros, lo que permite una distribución flexible para oficinas corporativas, áreas de trabajo colaborativo o divisiones multiusuario. El edificio incluye 51 cajones de estacionamiento, elevador con capacidad para 6 personas, terraza y comedor, garantizando comodidad y practicidad para el personal y visitantes.
Amenidades y ventajas clave:
Terraza y comedor para uso corporativo
Espacios amplios y bien distribuidos
Elevador y estacionamiento privado para 51 autos
Infraestructura lista para ocupar y adaptarse a distintos usos corporativos
Excelente estado de conservación y mantenimiento
Ubicación estratégica:
Situado sobre Periférico Sur, con acceso inmediato a vías rápidas, cercanía a centros corporativos, zonas comerciales y servicios clave, este edificio ofrece alta visibilidad y posicionamiento premium. Su ubicación garantiza conectividad y eficiencia operativa, factores críticos para empresas de alto nivel y actividades corporativas de primer orden.
Oportunidad para inversionistas:
Este activo no solo es ideal para empresas que buscan establecer su sede en un inmueble AAA, sino también para inversionistas interesados en rentabilidad y posicionamiento estratégico. La propiedad ofrece un potencial inmediato de ocupación y es adaptable a multiusuario o single tenant, maximizando el retorno sobre inversión y el valor del portafolio corporativo.
Este edificio representa la combinación perfecta entre prestigio, funcionalidad y rentabilidad, pensado para clientes premium e inversionistas corporativos que buscan un inmueble con infraestructura de lujo, ubi…
Edificio
$ 140,000 MXN/mes
Prado Coapa Tercera Sección, Tlalpan
AguaBodegaEstacionamientoAzotea
27/09/2025 en - COLDWELL BANKER CAPITAL
Centros sanitarios
A 195 m de Médica Coapa
Hospital
A 1 km de Hospital Tlalpan
Centro comercial
A 1 km de galerias coapa
ATRIBUTOS DE LA PROPIEDAD:
UBICACIÓN: EXCELENTE UBICACIÓN SOBRE AV. ACOXPA, CASI ESQUINA CON DIVISIÓN DEL NORTE.
NIVELES: 3 NIVELES.
ESTACIONAMIENTO: 4 LUGARES DISPONIBLES.
DISPONIBILIDAD PARA RENTA: SE PUEDEN RENTAR LOS DOS PRIMEROS PISOS (PB Y 1ER PISO).
USO DE SUELO: COMERCIAL.
ANTIGÜEDAD: 20 AÑOS.
DISTRIBUCIÓN: PISOS SIN DIVISIONES, OFRECIENDO GRAN FLEXIBILIDAD.
SUPERFICIE CONSTRUIDA: APROXIMADAMENTE 258 M² DE CONSTRUCCIÓN REAL.
CISTERNA: CAPACIDAD DE 10,000 LITROS.
ESCALERAS: AMPLIAS, ACCESIBLES Y FUNCIONALES.
ALTURA ENTRE PISOS: 4 METROS, IDEAL PARA DIVERSOS USOS COMERCIALES.
USOS SUGERIDOS: LABORATORIOS, GIMNASIOS, BANCOS, PASTELERÍAS, OFICINAS CORPORATIVAS, ENTRE OTROS.
RECOMENDACIÓN: SE SUGIERE VISITAR LA PROPIEDAD PARA EVALUAR TODAS LAS POSIBILIDADES DE USO QUE OFRECE EL ESPACIO.
Edificio
$ 315,000 MXN/mes
Destacado
San Miguel Chapultepec I Sección, Miguel Hidalgo
AguaBodegaCircuito cerrado de televisiónElevadorEstacionamiento
10/07/2025 en - ORIGEN Group | Real Estate
Oficinas gubernamentales
A 2 km de Secretaría De Salud Gobierno de CDMX
Centros sanitarios
A 331 m de Hospital Militar de Zona Constituyentes
Hospital
A 1 km de Hospital Escandón
- Edificio comercial de 4 niveles.
- Espacios totalmente semi-acondicionados.
- Oficinas en pisos altos con balcones y terrazas.
- Roof garden.
- Elevador para 6 personas.
- Accesos por Constituyentes y Múzquiz.
- 6 espacios de estacionamiento en semi sótano.
- Uso de suelo habitacional mixto
Edificio
$ 272,000 MXN/mes
Polanco II Sección, Miguel Hidalgo
1 Recámara
1 Baño
Sin amueblar
20/08/2024 en - Coldwell Banker Experience
Oficinas gubernamentales
A 2 km de Comisión Nacional de Áreas Naturales Protegidas
Centros sanitarios
A 858 m de Hospital Carso 3
Hospital
A 1 km de hospital central militar cdmx
Excelente edificio para oficinas de 4 niveles, en una de las zonas más centricas de Polanco. Cuenta con 8 baños distribuidos en los 4 niveles y 15 lugares de estacionamiento. El costo del arrendamiento es más IVA. Este inmueble se puede rentar completo o cada uno de los pisos por separado, el costo de renta por nivel es de $70,000 más IVA.
Edificio
$ 250 MXN/mes
Santa Lucía, Álvaro Obregón
EstacionamientoDespacho
09/09/2024 en - Cushman & Wakefield
Centro comercial
A 1 km de Centro Comercial Santa Fe
Guardería
A 780 m de Caci Corpus Cristi
Ocio
A 333 m de Área Central y Asta Bandera ITESM
Caracteristicas generales
Área de Terreno: 1,338 m²
Área construida: 2,052 m2
Área rentable: 1,541 m2
Terraza: 123 m2 rentables
Niveles: Planta Baja + 3 niveles + Roof
Uso de Suelo: HM/4/30/M
Habitacional Mixto, 4 niveles máximo de
contrucción, 30% área libre y densidad med
Para mayor información contactar: Angelica Montes 558525----
Edificio
$ 531,719 MXN/mes
Lomas De Chapultepec V Sección, Miguel Hidalgo
SeguridadEstacionamientoElevador
14/03/2025 en - 3R CONNECT
Oficinas gubernamentales
A 1 km de VFS Visas A Canadá
Centros sanitarios
A 799 m de Santa Teresita
Hospital
A 1 km de hospital central militar cdmx
EL INMUEBLE CUENTA CON LAS SIGUIENTES CARACTERÍSTICAS:
***** VER VIDEO *****
Tipo de inmueble: Edificio
M2 totales: 1,400
Se renta: Sin amueblar
Niveles: 3
Ubicación: Exterior
Baños: 6
Persianas, cortinas & blackouts: Persianas, Blackouts
La cocina es: Cerrada
Especificaciones del inmueble:
Recepción
Cocineta
4 Cubiculos
Salas de Juntas
Espacios para dividir en cubículos
ACABADOS DE LA PROPIEDAD
Pisos de Alfombra
AMENIDADES Y CARACTERÍSTICAS DEL CONDO
Areas comunes: Elevador, Seguridad 24/7
REQUISITOS PARA RENTAR
1 mes de renta, 1 mes de depósito, Aval
NOTAS
Valor del mantenimiento: incluido
Código EasyBroker: EB-QR3290
Código interno: SF
Disponibilidad: Inmediata
Notas importantes: Uso de suelo comercial.
787 m2 de estacionamiento para todo el edificio
Edificio
$ 1,504,300 MXN/mes
Verónica Anzures, Miguel Hidalgo
25 Baños
2,498 m²
AzoteaSeguridad
Hace 1 semana, 1 día en - INCITY BIENES RAÍCES
Oficinas gubernamentales
A 502 m de Oficinas del Órgano Administrativo Desconcentrado Prevención y Readaptación Social
Centros sanitarios
A 1 km de IMSS Conjunto Colonia
Hospital
A 1 km de imss reforma Instituto Mexicano del Seguro Social
Nocnok ID: NN-GQI234. EDIFICIO DE OFICINAS EN RENTA – VERÓNICA ANZURES, CDMX
Ubicado en una zona estratégica de la CDMX, con excelente conectividad hacia Circuito Interior, a unos pasos de Plaza de las Estrellas, bancos, restaurantes y transporte público. Ideal para instituciones, clínicas, corporativos o centros educativos.
CARACTERÍSTICAS DEL INMUEBLE:
✓ Edificio Clase B
✓ Superficie rentable total: 2,498 m²
✓ Distribución:
- Torre A: 1,333 m² (PB + 4 niveles)
- Torre B: 864 m² (PB + 5 niveles)
- Torre C: 300 m² (PB + 2 niveles)
✓ Cajones de estacionamiento: 1 por cada 92.5 m²
✓ Uso de suelo amplio y versátil HM/10/30/M
✓ Roof garden adaptable
✓ Salón de usos múltiples de 85 m² para eventos o capacitaciones
✓ Espacios flexibles, acondicionados o en obra gris
✓ Baños en todos los niveles
✓ 2 elevadores por nivel en Torre A y 1 en Torre B
Distribución de áreas rentables por torre (m²)
Torre A
✓ Sótano 01: 16.85 m²
✓ Planta Baja: 161.57 m²
✓ Nivel 02: 288.65 m²
✓ Nivel 03: 288.65 m²
✓ Nivel 04: 288.65 m²
✓ Nivel 05: 288.65 m²
Torre B
✓ Planta Baja: 95.05 m²
✓ Nivel 01: 152.16 m²
✓ Nivel 02: 152.57 m²
✓ Nivel 03: 152.76 m²
✓ Nivel 04: 152.76 m²
✓ Nivel 05: 159.32 m²
Torre C
✓ Planta Baja: 104.16 m²
✓ Nivel 01: 91.76 m²
✓ Nivel 02: 104.16 m²
Inversión:
Renta: $350 por m² + IVA
Mantenimiento: Por definir
Contáctanos para conocer disponibilidad por nivel y opciones de acondicionamiento.Libre de gravamen
Edificio
$ 3,046,542 MXN/mes
Atlamaya, Álvaro Obregón
20 Baños
9,288 m²
Acceso para personas con discapacidadSeguridad
Hace 1 semana, 1 día en - INCITY BIENES RAÍCES
Oficinas gubernamentales
A 2 km de Consejo Nacional de Ciencia y Tecnología
Centros sanitarios
A 988 m de Hospital vicentino y casa hogar
Centro comercial
A 1 km de plaza loreto df distrito federal
Nocnok ID: NN-GQI200. ¡Corporativo en Renta en Altavista, CDMX!
Ubicado en una zona exclusiva al sur de la ciudad, este espacio es ideal para grandes empresas.
Área Total Rentable Disponible: 9,288.61 m²
Entrega en Obra Gris – Disponibilidad 4Q 2025
Distribución:
✓ Piso 2: 3,061.09 m²
✓ Piso 1: 3,061.09 m²
✓ Planta Baja: 2,639.77 m²
✓ Anexo Piso 1: 262.33 m²
✓ Anexo Planta Baja: 262.33 m²
Estacionamiento y Servicios
✓ 116 cajones de estacionamiento
✓ Planta de luz
✓ Hidrantes y extintores
✓ Baños en cada nivel
✓ Escaleras de emergencia
✓ Uso de suelo para oficinas
Inversión:
Renta: $19.00 USD/m²
Ubicación Estratégica en Altavista
Precios y disponibilidad sujetos a cambio sin previo aviso.Libre de gravamen
Edificio
$ 3,483,900 MXN/mes
Tabacalera, Cuauhtémoc
20 Baños
7,742 m²
ElevadorSeguridad
Hace 1 semana, 1 día en - INCITY BIENES RAÍCES
Aeropuerto
A 8 km de Aeropuerto Internacional de la Ciudad de México - AICM
Oficinas gubernamentales
A 1 km de Banco De Mexico
Centros sanitarios
A 1 km de Hospital Obregón
Nocnok ID: NN-GQD545. ️ ¡Oportunidad Exclusiva en Paseo de la Reforma! ️
Edificio Corporativo en el Corazón Financiero de la CDMX
Superficie Total Rentable: 7,742.30 m² | 10 pisos disponibles (4-10 y 14-16) | 774.23 m² por nivel
✅ Características de Alto Nivel:
✔ Altura Libre: 2.70 m (espacios amplios y luminosos)
✔ Estacionamiento: 241 cajones para comodidad de empleados y visitantes
✔ Movilidad: 4 elevadores de alta capacidad (12 personas)
✔ Uso de Suelo: Oficinas corporativas (listo para operar)
✔ Entorno Dinámico: Cercanía a bancos, restaurantes gourmet y centros comerciales
¿Por qué este edificio?
Imagen Corporativa: Refuerza tu marca en una dirección de prestigio internacional.
Renta: $450.00/m² + IVA
¡Solo para empresas serias!
Contáctanos hoy para agendar una visita exclusiva y conoce cómo este edificio puede escalar tu operación.Libre de gravamen
Edificio
$ 1,767,180 MXN/mes
Florida, Álvaro Obregón
30 Baños
9,493 m²
Seguridad
Hace 1 semana, 1 día en - INCITY BIENES RAÍCES
Oficinas gubernamentales
A 2 km de Alcaldía de Coyoacán
Centros sanitarios
A 1 km de Santa Coleta
Hospital
A 961 m de Hospital General Dr. Dario Fernandez Fierro
Nocnok ID: NN-GQI197. Edificio Corporativo en Renta – Insurgentes Sur
⚙️ Infraestructura del edificio
✓ Planta de emergencia
✓ Sistema contra incendios
✓ Dos elevadores de pasajeros
✓ Cisterna contra incendios y de agua potable
✓ Sistema de aire acondicionado
✓ Instalaciones eléctricas e hidráulicas
✓ Pisos de loseta y cerámica
✓ Escaleras de emergencia
Características Generales
✓ Niveles de oficinas: 11
✓ Niveles de servicios: 3
✓ Niveles de estacionamiento: 5
✓ Capacidad: 120 cajones de estacionamiento
✓ Total de metros rentables: 9,459 m²
Áreas Rentables – Detalle de Renta
✓ Oficinas – 11 niveles – 4,013 m² – $350/m² – Renta: $1,404,550.00
✓ Servicios – 3 niveles – 1,227 m² – $190/m² – Renta: $233,130.00
✓ Estacionamiento – 5 niveles – 3,849 m² – – –
✓ Planta baja (vigilancia y área comercial) – 1 nivel – 370 m² – $350/m² – Renta: $129,500.00
Inversión:
Renta Total Mensual: $1,767,180.00 + IVALibre de gravamen
Edificio
$ 1,341,200 MXN/mes
Centro, Cuauhtémoc
33 Baños
3,353 m²
Elevador
Hace 1 semana, 1 día en - INCITY BIENES RAÍCES
Aeropuerto
A 8 km de Aeropuerto Internacional de la Ciudad de México - AICM
Oficinas gubernamentales
A 1 km de Banco De Mexico
Centros sanitarios
A 1 km de Hospital Medex
Nocnok ID: NN-GQD666. Edificio en renta en el Centro, Alcaldía Cuauhtémoc, CDMX
Excelente edificio corporativo disponible en una de las zonas más transitadas y con mayor conectividad de la Ciudad de México. Ideal para oficinas gracias a su uso de suelo permitido y su ubicación estratégica sobre avenida principal.
Características del inmueble:
✓ Altura: 3 a 4 metros
✓ Estacionamiento: 17 cajones
✓ 2 elevadores para 13 personas
✓ Alta afluencia peatonal y vehicular
✓ Uso de suelo: Oficinas
Superficies:
✓ Terreno: 513.42 m²
✓ Construcción total: 4,014.31 m²
✓ Área disponible: 3,353.82 m²
Inversión:
Renta: $400 por m² + IVALibre de gravamen
Edificio
$ 4,458,400 MXN/mes
Obrera, Cuauhtémoc
40 Baños
11,146 m²
Hace 1 semana, 1 día en - INCITY BIENES RAÍCES
Aeropuerto
A 6 km de Aeropuerto Internacional de la Ciudad de México - AICM
Oficinas gubernamentales
A 1 km de Banco De Mexico
Centros sanitarios
A 922 m de CMF San Antonio Abad ISSSTE
Nocnok ID: NN-GQK589. ¡Oportunidad Única en el Corazón de la CDMX!
Edificio Corporativo en Rentra en el Centro Histórico
Superficie Rentable: 11,146 m² distribuidos en planta baja + 6 niveles
✔ Semi-acondicionado – ¡Remodelable a tu medida!
✔ Áreas privadas, salas de juntas, espacios abiertos y estacionamiento.
✔ Seguridad 24/7: Control de accesos, CCTV, sistema contra incendios y más.
✔ Excelente para: Call Centers, oficinas corporativas o proyectos mixtos.
Precio: $400.00/m² (¡Inversión estratégica en zona de alto valor!)
Detalles clave:
Terreno: 4,280 m²
Construcción: 28,076 m²
Disponible: 11,146 m²
¡Espacio limitado! Ideal para empresas que buscan crecimiento, visibilidad y conectividad.Libre de gravamen
Edificio
$ 250,000 MXN/mes
Polanco Ii Sección, Miguel Hidalgo
6 Baños
570 m²
Hace 1 semana, 1 día en - INCITY BIENES RAÍCES
Oficinas gubernamentales
A 2 km de Comisión Nacional de Áreas Naturales Protegidas
Centros sanitarios
A 899 m de Hospital Carso 3
Hospital
A 1 km de hospital central militar cdmx
Nocnok ID: NN-GQD607. Edificio en Renta en Irrigación, Miguel Hidalgo – A un paso de Polanco
Ideal para oficinas corporativas o empresas que buscan una sede funcional, equipada y bien conectada.
Ubicación estratégica en la colonia Irrigación, una zona con creciente desarrollo corporativo y habitacional gracias a su cercanía con Polanco y su excelente conectividad.
Inversión:
Renta: $250,000 mensuales + IVA
Características Generales:
✓ Terreno: 190 m²
✓ Construcción total: 570 m² (190 m² por nivel)
✓ Edificio de 3 niveles + rooftop equipado
✓ 7 lugares de estacionamiento
Distribución Funcional:
✓ Recepción con baño
✓ Sala de juntas con aire acondicionado
✓ 5 módulos amplios con divisiones de cristal
✓ Baños para hombres y mujeres en cada nivel
✓ Área de cafetería
️ Equipamiento Incluido:
✓ Aire acondicionado en distintas áreas
✓ Escritorios, sillas, cajoneras y gabinetes
Roof Top Privado:
✓ Perfecto para reuniones o descanso
✓ Iluminación, jardineras, salas, sombrillas y mesas
Una excelente oportunidad en una zona con alta plusvalía y en constante transformación.
¡Agenda tu visita y conoce el espacio ideal para tu empresa!Libre de gravamen
Edificio
$ 210,000 MXN/mes
Polanco Nb, Anzures
700 m²
AlarmaEstacionamientoInternetSin amueblar
21/04/2023 en - City Inmobiliaria
Oficinas gubernamentales
A 970 m de Oficinas del Órgano Administrativo Desconcentrado Prevención y Readaptación Social
Centros sanitarios
A 1 km de Hospital San Ángel Inn Chapultepec
Hospital
A 954 m de imss reforma Instituto Mexicano del Seguro Social
Aprovecha ésta magnifica oportunidad de renta!! Ubicación insuperable, en una de las mejores colonias de la CDMX, excelentes vías de acceso y de Transporte, muy cerca de Avenidas principales como Circuito Interior Melchor Ocampo y Av. Thiers. Amplio edificio de tres niveles con 700 mts2 de construcción repartidos en tres niveles, apto para Corporativos, Escuelas, Empresas grandes, Call Centers, este bello inmueble cuenta con oficinas de excelente tamaño, iluminación natural, algunas cuentan con baño propio, área de recepción y sala de espera, baños para hombres y mujeres en cada piso, areas abiertas para adaptar como salas de juntas, espacios para archiveros, una magnifica recepción que le dará ese toque distinto a la empresa o negocio, también cuenta con área de cocineta y comedor ideal para los empleados, además una magnifica terraza con excelente vista (que no incluye en el monto de la renta, sin embargo se puede negociar) el inmueble cuenta con 10 espacios para estacionamiento. Visítalo ya!!! Que no te lo ganen. Contamos con servicio de City Mudanzas. Mon Gar.
A 6 km de Aeropuerto Internacional de la Ciudad de México - AICM
Oficinas gubernamentales
A 1 km de Banco De Mexico
Centros sanitarios
A 1 km de CMF San Antonio Abad ISSSTE
Enorme edifico de oficinas ideal para corporativo, antes Tribunal Superior de Justicia de la CDMX, ubicación privilegiada, muy cerca del metro Isabel la Católica, conexión con vialidades principales, cuenta con escaleras de servicio al exterior, área rentable 3,137.00m2, 16 cajones de estacionamiento propio, 3 niveles más planta baja, donde actualmente hay bodegas, sanitarios por nivel H y M. Planta baja 1,148.00m2. Primer Nivel 1,173.00. Segundo nivel 982.00m2. Tercer nivel 982.00m2. Azotea 996.00m2
Edificio
$ 320,000 MXN/mes
Destacado
La Martinica, Álvaro Obregón
3 Recámaras
6 Baños
SeguridadEstacionamientoJardínBodegaDespachoCuarto de servicioElectricidadCuarto de LimpiezaZonas verdesSaunaAsador
31/10/2025 en - Alma Verónica
Centros sanitarios
A 551 m de Hospital General Enrique Cabrera
Guardería
A 942 m de José Joaquín Fernández de Lizardi
Ocio
A 759 m de Parque tarango
Bodega, Taller, y Edificio de Oficinas en Renta
Renta todo o en partes.
Lomas de Tarango, Álvaro Obregón.
Predio de 10,000 mts2, donde encuentras:
Edificio de oficinas con PB, primero y segundo nivel.
Con superficie de 1,275.75 mts por nivel.
Bodega, taller y almacén de 2,377 mts
Patio de acceso a bodegas con 2 rampas para carga y descarga de vehículos pesados.
Areas comunes:
Jardines arbolados con superficie de 6069.70mts.
Casa habitación de 266mts2 para personal de vigilancia .
Estacionamiento para 30 autos aproximadamente.
Precios de Oportunidad por debajo de mercado:
Precio de renta de área de bodega, taller y almacén $320,000.00
Precio de renta de edifico de oficinas: $100,000.00
Precio de renta de toda la propiedad en conjunto $370,000.00 !!!
Edificio
$ 80,000 MXN/mes
Destacado
Nueva Santa María, Azcapotzalco
9 Recámaras
9 Baños
AguaBodegaCocina integralCuarto de LimpiezaElectricidadDespacho
Hace 1 semana, 4 días en - Grupo Asesor Inmobiliario Proben
Oficinas gubernamentales
A 2 km de Oficinas del Órgano Administrativo Desconcentrado Prevención y Readaptación Social
Centros sanitarios
A 1 km de Centro Comunitario de Salud Mental Cuauhtémoc
Hospital
A 1 km de Hospital de la Mujer
ATENCIÓN: EMPRESARIOS, INVERSIONISTAS
Edificio ideral para acondicionarse para consultorios, oficinas, cuenta con los siguientes espacios.
144.28 M2 de terreno
478.35 M2 de construcción
PLANTA BAJA
* 2 recepciones
* Sala de espera
* Medio baño
* 3 cubiculos, con medio baño y una habitación con Baño completo
* Bodega
PRIMER NIVEL
*5 Habitaciones con baño completo
SEGUNDO NIVEL
* Estancia
* Cocina integral
* 2 habitaciones con baño completo y vestidor
TERCER NIVEL
* Loft con cocineta y baño completo
Imagina diseñar cada rincon y tranformar este espacio en una verdadera obra que cubra tus necesidades.
Cerca del IPN Santo Tomás, salida a Eje 3 Nte. Camarones, Av. de los Maestros y Circuito interior.
LLamanos para concertar una cita, con gusto te atenderemos
Edificio
$ 80,000 MXN/mes
Destacado
Nueva Santa María, Azcapotzalco
8 Recámaras
10 Baños
CisternaCocina integralElectricidadAguaDespachoRecámara con closet
20/06/2025 en - Grupo Asesor Inmobiliario Proben
Oficinas gubernamentales
A 2 km de Oficinas del Órgano Administrativo Desconcentrado Prevención y Readaptación Social
Centros sanitarios
A 1 km de ISSSTE Clínica Cuitlahuac
Hospital
A 1 km de Hospital de la Mujer
*¡Oportunidad única en Azcapotzalco: Edificio multifuncional en Nueva Santa María!*
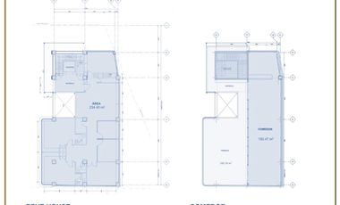
Este versátil edificio que anteriormente funcionó como clínica médica, ubicado en la colonia Nueva Santa María, Azcapotzalco, representa una oportunidad extraordinaria para adaptarse a diferentes necesidades comerciales o residenciales. Con una ubicación estratégica a solo 10 minutos del IPN Santo Tomás, este edificio de 3 niveles cuenta con un espacioso diseño que se ajusta a una gran variedad de usos.
La planta baja, , ofrece un amplio espacio que incluye una sala de espera con medio baño, 3 cubículos individuales uno con medio baño y los otros dos con baño completo y una conveniente bodega. Ideal para consultorios médicos, oficinas o cualquier otro negocio que requiera espacios funcionales y bien distribuidos.
El primer nivel cuenta con 4 espacios independientes con baño completo, un área que funcionó como quirófano, otra que fue utilizada como central de enfermería y una más como vestidor, ofreciendo una gran versatilidad para adaptarlos a tus necesidades específicas.
En el segundo nivel se encuentran 2 confortables recámaras con vestidor y baño completo cada una, un área de lavado, una cocina integral y un espacioso espacio para sala y comedor, que brinda comodidad y funcionalidad para una vida residencial o ejecutiva.
El tercer nivel alberga un loft con baño y cocineta, perfecto para una oficina ejecutiva, estudio de diseño o un acogedor espacio de vida independiente.
Este edificio ofrece un sinfín de posibilidades de configuración para adaptarse a tus necesidades comerciales o habitacionales, convirtiéndolo en una excelente inversión para aquellos que buscan una ubicación estratégica y una alta versatilidad en sus espacios.
C O N T A C T A N O S !
Edificio
$ 4,000 MXN/mes
Destacado
Aeropuerto, Aquiles Serdán
CisternaAire acondicionado
24/05/2023 en - VBW Bienes Raices
Aeropuerto
A 1 km de Aeropuerto Internacional de la Ciudad de México - AICM
Centros sanitarios
A 1 km de Hospital Pediatrico San Juan de Aragon
Ocio
A 783 m de Huero Comunitario Selvas
Ponemos a disposición de su empresa o asociación tres salones para usos múltiples. El edificio se encuentra ubicado en Florines 275, Colonia Aquiles Serdán, Venustiano Carranza, Ciudad de México. Excelente ubicación, a solo 100 metros de la estación del metro Oceanía (Línea 5).
Los salones están diseñados para permitir la realización de seminarios, congresos, conferencias, presentaciones, cursos, exhibiciones o reuniones sociales o festivas.
Las instalaciones del edificio cuentan con aire acondicionado, área de recepción y sala para coffee break.
La renta incluye equipo de audio, proyector, pantalla, rotafolios, mesas, sillas y área de sanitarios.
Salón 1 - Capacidad para 50 personas. Costo de $ 4,000 M.N. por 5 hrs
Salón 2 - Capacidad para 100 personas. Costo de $ 6,000 M.N. por 5 hrs
Salón 3 - Capacidad para 100 personas. Costo de $ 6,000 M.N. por 5 hrs