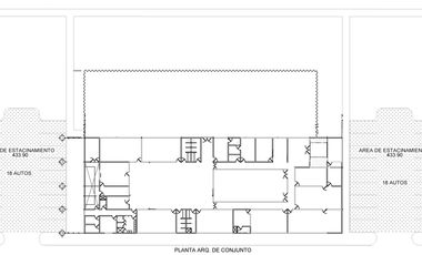
Renta de oficina edificio independiente de 1 piso con 1,000m2 de área interior para uso de oficinas, con 2 areas de estacionamiento a cada lado con capacidad de 18 cajones cada uno, total de 36 estacionamientos y con área exterior de 867m2 de uso exclusivo del edificio.
Se ubica en un parque industrial en Guadalupe NL, limites con Monterrey, a unos metros de Av. Miguel Alemán, ideal para empresas que buscan cercanía al aeropuerto y áreas al oriente de la ciudad.
Area de oficinas: 1,003m2
Area Exterior: 868m2
Estacionamiento: 36 cajones
Renta: $250 pesos por m2 + iva
Plazo mínimo 3 años
Contrato tipo 3 Net.
CAM incluido en el precio de renta.
Incluye recepción, áreas abiertas, áreas cerradas o privados, algunos con medio baño, módulos de baños H y M y otras áreas de servicio.
*Los precios y áreas deben ser consideradas aproximadas, y las imágenes deben ser consideradas meramente ilustrativas, pues están sujetos a cambios sin previo aviso. Para una cotización precisa y actualizada, por favor comuníquese con nuestros asesores para brindarle la información al día. EasyBroker ID: EB-SY3206
Oficina
$ 458,850 MXN/mes
Valles de Linda Vista, Guadalupe
2,415 m²
04/12/2025 en - mˣoffices
Centros sanitarios
A 77 m de Doctor Hospital
Guardería
A 779 m de Josefa Ortiz De Dominguez
Escuela
A 825 m de Escuela Primaria Santiago Roel
ID: (EB-OV4751)
Oficinas en renta de 2,415m2 en obra gris (5 pisos consecutivos de 483m2 c/u) en inmueble mixto (comercial + oficinas) en la mejor zona de Guadalupe, sobre avenida primaria principal que comunica rápidamente a Monterrey, San Nicolás y Apodaca, ideal para empresas grandes, back office, call center, institutos, oficinas operativas, administrativas y de ventas, a un excelente precio..!
Area: 2,415m2 rentables (5 pisos de 483m2 c/u)
Renta: $190 pesos por m2 + iva
Mtto.: $55 pesos por m2 + iva
Entrega en obra gris
Estacionamiento: 230 cajones en total de la plaza
Escaleras
Elevadores
Uno de nuestros asesores le atenderá con todo gusto.
*Precios, características y fotografías deben ser consideradas meramente informativas y sujetas a cambio sin previo aviso. Para una cotización más precisa y actualizada, por favor contáctenos, uno de nuestros asesores especializados le atenderá con todo gusto. EasyBroker ID: EB-OV4751
ID: (EB-OV4806)
Oficinas en renta de 483m2 en obra gris (1 piso completo) en inmueble mixto (comercial + oficinas) en la mejor zona de Guadalupe, sobre avenida primaria principal que comunica rápidamente a Monterrey, San Nicolás y Apodaca, ideal para empresas grandes, back office, call center, institutos, oficinas operativas, administrativas y de ventas, a un excelente precio..!
Area: 483m2 rentables (1 piso completo)
Renta: $190 pesos por m2 + iva
Mtto.: $55 pesos por m2 + iva
Entrega en obra gris
Estacionamiento: 230 cajones en total de la plaza
Escaleras
Elevadores
Uno de nuestros asesores le atenderá con todo gusto.
*Precios, características y fotografías deben ser consideradas meramente informativas y sujetas a cambio sin previo aviso. Para una cotización más precisa y actualizada, por favor contáctenos, uno de nuestros asesores especializados le atenderá con todo gusto. EasyBroker ID: EB-OV4806
Oficina
$ 367,080 MXN/mes
Valles de Linda Vista, Guadalupe
1,932 m²
04/12/2025 en - mˣoffices
Centros sanitarios
A 1 km de SIMILARES
Guardería
A 779 m de Josefa Ortiz De Dominguez
Escuela
A 311 m de Escuela Profesor Rafael Garza Livas
ID: (EB-OV4769)
Oficinas en renta de 1,932m2 en obra gris (4 pisos consecutivos de 483m2 c/u) en inmueble mixto (comercial + oficinas) en la mejor zona de Guadalupe, sobre avenida primaria principal que comunica rápidamente a Monterrey, San Nicolás y Apodaca, ideal para empresas grandes, back office, call center, institutos, oficinas operativas, administrativas y de ventas, a un excelente precio..!
Area: 1,932m2 rentables (4 pisos de 483m2 c/u)
Renta: $190 pesos por m2 + iva
Mtto.: $55 pesos por m2 + iva
Entrega en obra gris
Estacionamiento: 230 cajones en total de la plaza
Escaleras
Elevadores
Uno de nuestros asesores le atenderá con todo gusto.
*Precios, características y fotografías deben ser consideradas meramente informativas y sujetas a cambio sin previo aviso. Para una cotización más precisa y actualizada, por favor contáctenos, uno de nuestros asesores especializados le atenderá con todo gusto. EasyBroker ID: EB-OV4769
Oficina
$ 183,540 MXN/mes
Libertad, Guadalupe
966 m²
04/12/2025 en - mˣoffices
Centros sanitarios
A 1 km de SIMILARES
Guardería
A 810 m de Josefa Ortiz De Dominguez
Escuela
A 424 m de Escuela Profesor Rafael Garza Livas
ID: (EB-OV4801)
Oficinas en renta de 966m2 en obra gris (2 pisos consecutivos de 483m2 c/u) en inmueble mixto (comercial + oficinas) en la mejor zona de Guadalupe, sobre avenida primaria principal que comunica rápidamente a Monterrey, San Nicolás y Apodaca, ideal para empresas grandes, back office, call center, institutos, oficinas operativas, administrativas y de ventas, a un excelente precio..!
Area: 966m2 rentables (2 pisos de 483m2 c/u)
Renta: $190 pesos por m2 + iva
Mtto.: $55 pesos por m2 + iva
Entrega en obra gris
Estacionamiento: 230 cajones en total de la plaza
Escaleras
Elevadores
Uno de nuestros asesores le atenderá con todo gusto.
*Precios, características y fotografías deben ser consideradas meramente informativas y sujetas a cambio sin previo aviso. Para una cotización más precisa y actualizada, por favor contáctenos, uno de nuestros asesores especializados le atenderá con todo gusto. EasyBroker ID: EB-OV4801
Oficina
$ 275,500 MXN/mes
Libertad, Guadalupe
1,450 m²
04/12/2025 en - mˣoffices
Centros sanitarios
A 1 km de SIMILARES
Guardería
A 810 m de Josefa Ortiz De Dominguez
Escuela
A 424 m de Escuela Profesor Rafael Garza Livas
ID: (EB-OV4795)
Oficinas en renta de 1,450m2 en obra gris (3 pisos consecutivos de 483m2 c/u) en inmueble mixto (comercial + oficinas) en la mejor zona de Guadalupe, sobre avenida primaria principal que comunica rápidamente a Monterrey, San Nicolás y Apodaca, ideal para empresas grandes, back office, call center, institutos, oficinas operativas, administrativas y de ventas, a un excelente precio..!
Area: 1,450m2 rentables (3 pisos de 483m2 c/u)
Renta: $190 pesos por m2 + iva
Mtto.: $55 pesos por m2 + iva
Entrega en obra gris
Estacionamiento: 230 cajones en total de la plaza
Escaleras
Elevadores
Uno de nuestros asesores le atenderá con todo gusto.
*Precios, características y fotografías deben ser consideradas meramente informativas y sujetas a cambio sin previo aviso. Para una cotización más precisa y actualizada, por favor contáctenos, uno de nuestros asesores especializados le atenderá con todo gusto. EasyBroker ID: EB-OV4795
Oficina
$ 550,000 MXN/mes
Guadalupe
2,900 m²
04/12/2025 en - mˣoffices
Centros sanitarios
A 1 km de SIMILARES
Escuela
A 683 m de Escuela Profesor Rafael Garza Livas
Centros sanitarios
A 1 km de UMF 27 IMSS
ID: (EB-OV1930)
Oficinas en renta de 2,900m2 en obra gris (6 pisos consecutivos de 483m2 c/u) en inmueble mixto (comercial + oficinas) en la mejor zona de Guadalupe, sobre avenida primaria principal que comunica rápidamente a Monterrey, San Nicolás y Apodaca, ideal para empresas grandes, back office, call center, institutos, oficinas operativas, administrativas y de ventas, a un excelente precio..!
Area: 2,900m2 rentables (6 pisos de 483m2 c/u)
Renta: $190 pesos por m2 + iva
Mtto.: $55 pesos por m2 + iva
Entrega en obra gris
Estacionamiento: 230 cajones en total de la plaza
Escaleras
Elevadores
Uno de nuestros asesores le atenderá con todo gusto.
*Precios, características y fotografías deben ser consideradas meramente informativas y sujetas a cambio sin previo aviso. Para una cotización más precisa y actualizada, por favor contáctenos, uno de nuestros asesores especializados le atenderá con todo gusto. EasyBroker ID: EB-OV1930
Oficina
$ 95,000 MXN/mes
Guadalupe Centro, Guadalupe
500 m²
29/11/2023 en - 1807
Centros sanitarios
A 1 km de SIMILARES
Ocio
A 171 m de Plaza Principal de Cd. Guadalupe
Escuela
A 825 m de Preparatoria 8
500m2 oficinas
8 privados
3 salas de juntas
2 áreas abiertas
3 bodegas
Recepción
4 baños
14 cajones de estacionamiento. EasyBroker ID: EB-KB0374
Oficina
$ 30,000 MXN/mes
Guadalupe
64 m²
Estacionamiento
Hace 2 semanas, 3 días en - Inmobiliaria Premier Del Valle
Centros sanitarios
A 699 m de Clinica 32
Ocio
A 727 m de Tapachula
Escuela
A 638 m de Escuela Secundaria no.8 "Niños Heroes"
Oficina en Renta en una excelente ubicacion de la zona Centro de Monterrey, Amueblada, Equipada 64 m2, con 3 Cajones de Estacionamiento. EasyBroker ID: EB-VE7689
Oficina
$ 103,448 MXN/mes
Valles de Linda Vista, Guadalupe
2 Baños
483 m²
EstacionamientoSeguridad
02/01/2026 en - Inmobiliaria Square2
Centros sanitarios
A 1 km de SIMILARES
Guardería
A 698 m de Josefa Ortiz De Dominguez
Escuela
A 229 m de Escuela Profesor Rafael Garza Livas
Oficina en renta, ubicada en edificio de oficinas con plaza comercial en la zona de Guadalupe, sobre avenida principal, con gran afluencia vehicular.
Espacio para oficina de 483.05.2, acondicionado, cuenta con aproximadamente 18 privados y 3 salas de juntas, baños para hombres y mujeres
Precio $214.18/m2, más cuota de mantenimiento de $55/m2. Incluye 20 cajones de estacionamiento.
Precios más IVA.
¡Llámanos para agendar tu cita! ID 11614
Precio, disponibilidad y atributos podrán ser modificados sin previo aviso. En algunas propiedades, las imágenes podrán ser solamente ilustrativas. Consulte con su asesor inmobiliario.
Oficina
$ 103,448 MXN/mes
Valles de Linda Vista, Guadalupe
2 Baños
483 m²
EstacionamientoSeguridad
02/01/2026 en - Inmobiliaria Square2
Centros sanitarios
A 134 m de Doctor Hospital
Guardería
A 698 m de Josefa Ortiz De Dominguez
Escuela
A 746 m de Escuela Primaria Santiago Roel
Oficina en renta, ubicada en la zona de Guadalupe, en Torre de Oficinas en Plaza Comercial y sobre avenida principal, con gran afluencia vehicular.
Espacio para oficina de 483.05.2, acondicionado, cuenta con 3 privados y amplias áreas abiertas, baños para hombres y mujeres y amplia área de cocina y comedor.
Precio $214.18/m2, más mantenimiento de $55/m2. Incluye 20 cajones de estacionamiento. Precios más IVA.
Llámanos para agendar tu cita. ID 11615
Precio, disponibilidad y atributos podrán ser modificados sin previo aviso. En algunas propiedades, las imágenes podrán ser solamente ilustrativas. Consulte con su asesor inmobiliario.
Oficina
$ 35,000 MXN/mes
Chinameca, Guadalupe
8 Recámaras
4 Baños
Aire acondicionadoEstacionamientoAcceso para personas con discapacidadElectricidadInternetAgua
Hace 2 semanas, 23 horas en - Tría Bienes Raíces
Centros sanitarios
A 283 m de Clinica 32
Ocio
A 541 m de Tapachula
Escuela
A 654 m de Escuela Adolfo Prieto
EXCELENTE PROPIEDAD QUE SE PUEDE USAR PARA DIERENTES GIRO, ACTUALMENTE COMO CLINICA DENTAL Y DE LA SALUD, PERO SE PUEDE TRASFORMAR PARA CUALQUIER TIPO DE NEGOCIO .
CUENTA CON 8 CONSULTORIOS O ESPACIOS DE OFICINA CLIMATIZADOS, 2 BAÑOS PARA EL PERSONAL Y 2 PARA PUBLICO EN GENERAAL, RECEPCION, AREA DE ESPERA Y ESTACIONAMIENTO.
Oficina
$ 39,000 MXN/mes
Centro de Guadalupe, Guadalupe
1 Baño
129 m²
EstacionamientoElevador
31/12/2025 en - SM Inmuebles
Centros sanitarios
A 745 m de Clinica 32
Ocio
A 71 m de Plaza Principal de Cd. Guadalupe
Escuela
A 793 m de Preparatoria 8
Oficina en 6 to piso en el centro de Monterrey
en obra gris , se entregan con piso y canceles.
Oficina 603 - 129.07 m2
Oficina 604- 162.75 m2
Oficina 607- 179.31 m2
Obra gris $300 xm2 + iva
Acondicionada $490 x m2 +iva
Condiciones de renta
*2 meses de deposito
*1 mes renta anticipada al firmar
La luz y agua se contrata en la plaza con la administracion, internet por su cuenta
La disponibilidad y precio de cada inmueble está sujeta a cambio sin previo aviso.
La información y medidas son aproximadas y deberán ratificarse con la documentación
pertinente.En RENTA los precios estipulados son mas los impuestos correspondientes. EasyBroker ID: EB-TD6185
Oficina
$ 250,900 MXN/mes
Kalos, Carretera a Miguel Alemán, Guadalupe
1,003 m²
EstacionamientoSeguridadAgua
02/01/2026 en - Inmobiliaria Square2
Centros sanitarios
A 1 km de Clinica Universitaria San Rafael
Centro comercial
A 1 km de citadel y paseo la fe
Guardería
A 665 m de Jardin de Niños Tlaloc
Exclusivas Oficinas en Kalos Ruiz Cortines – Epicentro Estratégico para el Éxito Empresarial
Eleva tu negocio a nuevas alturas con estas impresionantes oficinas en Kalos Ruiz Cortines, un enclave de prestigio ubicado en el corazón de la mancha urbana de Monterrey, con acceso privilegiado a dos arterias clave: la Carretera Miguel Alemán y la Avenida Ruiz Cortines. Estratégicamente situadas cerca de la vibrante zona industrial, estas oficinas ofrecen una ubicación inmejorable para empresas que buscan conectividad, visibilidad y acceso a talento profesional.
Con una generosa superficie interior de 1,003.60 m² y un área exterior de 634.50 m², este espacio está diseñado para adaptarse a las necesidades de corporativos de élite, firmas internacionales o centros operativos de alto rendimiento. Los 36 cajones de estacionamiento garantizan comodidad para empleados y visitantes, mientras que la cuota de mantenimiento incluida asegura un entorno impecable sin costos adicionales.
El parque Kalos Ruiz Cortines combina infraestructura moderna con una ubicación que maximiza la eficiencia operativa, rodeado de la dinámica actividad industrial y comercial de Monterrey. Perfectas para empresas que buscan proyectar éxito y establecer una presencia dominante, estas oficinas ofrecen flexibilidad para personalizar espacios según tus necesidades, desde áreas abiertas hasta privados de diseño exclusivo.
Invierte en el futuro de tu empresa en un entorno que fusiona accesibilidad, prestigio y funcionalidad. Ideal para corporativos, centros de innovación o firmas que desean liderar desde el corazón económico de la ciudad.
Contáctanos hoy para una visita privada y descubre cómo estas oficinas pueden transformar la visión de tu negocio.
Plazo mínimo 3 años.
Contrato tipo 3 NET.
Precios más IVA.
ID 12204
Precio, disponibilidad y atributos podrán ser modificados sin previo aviso. En algunas propiedades, las imágenes podrán ser solamente ilustrativas. Consulte con su asesor inmobiliario.
Oficina
$ 14,317 MXN/mes
Destacado
Linda Vista, Guadalupe
44 m²
SeguridadEstacionamientoElectricidadAgua
26/04/2024 en - Cacheiro Inmobiliaria - Alejandro Amador
Centros sanitarios
A 1 km de SIMILARES
Guardería
A 423 m de Josefa Ortiz De Dominguez
Ocio
A 678 m de Adolfo Prieto park
Ubicado en zona con rápido acceso a vialidades como son Miguel Alemán, Constitución, Morones Prieto a 10 minutos del centro y a 20 minutos de aeropuerto. La oficina cuenta con gran estacionamiento para sus inquilinos y visitantes, cerca de Bancos, Pabellon Ciudadano y SAT de Guadalupe.
Características:
• Ubicada en planta alta
• ½ Baño
• 44 m2
Renta $ 14,317 (Incluye mtto)
Oficina
$ 19,000 MXN/mes
La Huerta, Guadalupe
70 m²
Aire acondicionadoEstacionamiento
Hace 1 semana, 5 días en - Inmobiliaria ADBR
Centros sanitarios
A 653 m de SIMILARES
Ocio
A 473 m de Nueva Exposición
Escuela
A 78 m de Primaria Club de Leones
Local/Oficina en Renta en Planta Baja.
Sobre Avenida 5 de Mayo.
Excelente ubicación con salida rápida a Av. Morones Prieto y a 5 minutos del estadio BBVA.
Importante: la disponibilidad y el precio de la propiedad pueden cambiar sin previo aviso. El precio publicado no contempla impuestos, gastos notariales o de poliza juridica, cuotas de mantenimiento, ni servicios. Para información actualizada y detalles completos, consulta a tu asesor inmobiliario. EasyBroker ID: EB-VF5444
Oficina
$ 120,000 MXN/mes
Centro de Guadalupe, Guadalupe
5 Baños
450 m²
EstacionamientoSin amueblar
24/12/2025 en - ELLASVENDEN
Centros sanitarios
A 1 km de SIMILARES
Ocio
A 447 m de Plaza Principal de Cd. Guadalupe
Metro
A 367 m de Estación de Metro Eloy Cavazos (Línea 1)
Oficinas en Renta de 3 niveles en el Centro de Guadalupe con Excelente Ubicacion en Esquina sobre la Ave. Benito Juarez, Ideal Para Clinica Dental, para Contadores o Despacho. Planta Baja 8 espacios para Oficinas Independientes, Segundo Piso Cuenta con 2 Recepciones y 3 Oficinas. Tercer Piso Cuenta con 4 Espacios y Baños para Dama y Caballeros, 2 Salas de espera. Cuenta con 8 cajones de estacionamientos para Empleados o Clientes. Servicios Completos y Disponibles, Agua Potable, Energia Electrica y Recolecion de Basura. *** Más Información al (81) 1522-----, Whatsapp 81-8178----- ***
Oficina
$ 26,000 MXN/mes
Torres de Linda Vista, Guadalupe
7 m²
26/06/2025 en - Realty World Sierra Madre
Centros sanitarios
A 1 km de SIMILARES
Guardería
A 944 m de Jardín de Niños Dr. José Eleuterio González
Escuela
A 841 m de Escuela Profesor Rafael Garza Livas
Se Renta Oficinas en Plaza Comercial de 76 m2 con algunos privados y módulos abiertos. ID: 27-OR-5317 En Plaza Alemán.
Se rentan 2 locales juntos, comunicados por dentro y con dos entradas.Cada uno de 38 m2 para dar un total de 76 m2Cuenta con 2 baños y 2 bodeguitas, 3 aires acondicionados tipo minisplits.Ya tiene algunas divisiones hechas de tablaroca que se puede acondicionar al gusto del cliente.Ideal para oficina, algún sistema de instrucción personalizada o para reclutamiento.El precio es más IVA ; ya incluye el mtto. (seguridad y limpieza áreas comunes)Amplio estacionamiento.
Oficina
$ 18,000 MXN/mes
Centro de Guadalupe, Guadalupe
2 Recámaras
1 Baño
Estacionamiento
02/12/2025 en - hh | Luxury Real Estate
Centros sanitarios
A 1 km de SIMILARES
Ocio
A 279 m de Plaza Principal de Cd. Guadalupe
Escuela
A 538 m de Preparatoria 8
Oficina en renta en el Centro de Guadalupe
ofcina de 35 metros, cuenta con 1/2 baño, bodega, mini split
ubicada a cuadras de la estación del metro y plaza principal de Gpe
Oficina
$ 29,500 MXN/mes
Guadalupe
10 m²
14/08/2025 en - Realty World Linde
Centros sanitarios
A 1 km de SIMILARES
Ocio
A 241 m de Plaza Principal de Cd. Guadalupe
Escuela
A 946 m de Preparatoria 8
OFICINA EN RENTA EN EL CENTRO DE GUADALUPE N L, ZONA GUADALUPEEXCELENTE UBICACION CERCA DE AVENIDAS PRINCIPALES COMO AV.CHAPULTEPEC , AV.AZTECA Y AV JUAREZ.AMPLIAS OFICINAS EN ZONA CENTRICA DE GUADALUPE.
OFICINA EN RENTA EN EL CENTRO DE GUADALUPE N L, ZONA GUADALUPEOFICINAS EN RENTA CON EXCELENTE UBICACON EN LA CABECERA MUNICIPAL GUADALUPE N.L.UBICACION CERCA DE AVENIDAS PRINCIPALES COMO AV.CHAPULTEPEC, AV.AZTECA Y AV.BENITO JUAREZExcelente Ubicación de oficinas.Oficinas o Local Comercial200 Mts 210 Mts de Frente9 Privados3 Baños5 ClimasAréa de Estacionamiento frente a las Oficinas para 2 autos
Oficina
$ 120,000 MXN/mes
Guadalupe
02/01/2026 en - Realty World Zima
Centros sanitarios
A 895 m de Clinica 32
Ocio
A 138 m de Plaza Principal de Cd. Guadalupe
Escuela
A 730 m de Preparatoria 8
64-EOR-2233 Edificio de Oficinas en Renta en Centro de Guadalupe, Ubicación privilegiada en Esquina - A pie de Avenida Principal
64-EOR-2233 Edificio de Oficinas en Renta en Centro de Guadalupe, Ubicación privilegiada en Esquina - A pie de Avenida PrincipalExcelente opción para empresas que buscan un espacio estratégico en el corazón de Guadalupe.2 pisos + tercer nivel | 78 estacionamientos | ideal para clínicas, dentistas, contadores, despachosEste edificio de oficinas ofrece 400 m de espacio flexible, ideal para adaptarse a las necesidades de tu negocio.Características del edificio: Superficie: 400 m (12 m de frente x 33 m de fondo) Área de 15 oficinas disponibles con dos espacios de recepción. Ubicación en esquina, altamente visible y con un anuncio panorámico con permiso vigente.Características:Edificio de 3 niveles: planta baja con 8 espacios independientes, segundo piso con 2 recepciones y 3 oficinas, tercer piso con 4 espacios y baños (damas y caballeros).Dos salas de espera7 -8 cajones de estacionamiento para tus empleados o clientes.Ubicado en esquina sobre avenida principal con más de 100 autos/día, accesible por metro, camiones y pasos peatonales.Muy cerca de avenidas de alto flujo como Morones Prieto.Contrato mínimo: 1añoServicios completos disponibles: Agua potable Energía eléctrica con acometida Drenaje pluvial y sanitario Recolección de basura Vialidades pavimentadasConectividad y servicios cercanos: Transporte público accesible Escuelas y centros educativos Hospitales y servicios médicos Instituciones bancarias Restaurantes y comerciosEste edificio de oficinas en renta se encuentra en una buena ubicación del centro de Guadalupe, con fácil acceso a todos los servicios y una excelente visibilidad. Precio justo acorde al valor de mercado, lo que lo convierte en una oportunidad única para tu negocio.Contáctanos para agendar una cita y explorar cómo este espacio puede impulsar el crecimiento de tu empresa. Ideal para empresas que buscan establecerse en un…
Oficina
$ 22,000 MXN/mes
Camino Real, Guadalupe
18 m²
26/06/2025 en - Realty World Inco
Ocio
A 779 m de Parque Benito Juárez
Escuela
A 608 m de Escuela Primaria Federal Profr. Matías Moreno
Ocio
A 658 m de Galerias Camino Real
Local y/o Oficina en Renta a una cuadra de Av. Eloy Cavazos, a 2 cuadras de Plaza ArcadiaPuede utilizarse como Oficina, Escuela, etc.
Todo el Segundo PisoÁrea común4 Privados, cada uno con baño completo y MinisplitDos de ellos tienen un muro divisorioEn la acera de enfrente hay una barda, lo que permite contar con amplio lugar de estacionamiento
Oficina
$ 120,000 MXN/mes
Provivienda Guadalupe, Guadalupe
483 m²
Estacionamiento
11/09/2025 en - Walls & People
Centros sanitarios
A 1 km de Centro de Salud Fomerrey 31
Escuela
A 775 m de Escuela Primaria Prof. Eva Sámano Bishop
Escuela
A 235 m de Escuela Primaria "Centauro del Norte"
Local en Renta Plaza ANTALYA
Av. Miguel Aleman.
230 Cajones de Estacionamiento, Escaleras, Elevador, Tiendas Atractivas.
Pisos Disponibles en Renta ,6,7,9 y 10
Area por piso 483.05mts2
Costo x mts2 $ 190.00
Mtto 26,568 por piso
* Datos sujetos a Cambios sin Previo Aviso. EasyBroker ID: EB-PN0327
Oficina
$ 120,000 MXN/mes
Centro de Guadalupe, Guadalupe
24/11/2025 en - Realty World Viva
Centros sanitarios
A 863 m de Clinica 32
Ocio
A 161 m de Plaza Principal de Cd. Guadalupe
Escuela
A 807 m de Preparatoria 8
40-EOR-8069Renta Edificio Centro GuadalupeUbicación Privilegiada: Av. Benito Juárez
Edificio Comercial Ideal Oficinas Corporativas, Área Médica, Escuelas 553 mts 14 Oficinas 10 Espacios de EstacionamientoRecepción/Mezzanine (102 m): Área abierta ideal para atención a clientes Planta Baja (186 m): Espacios amplios para recepción, oficinas privadas y áreas de trabajo. Planta Alta (190 m): Oficinas privadas, salas de juntas y sanitarios para damas y caballeros Sótano (74 m): Archivo o bodega con gran capacidad de almacenamiento.
Oficina
$ 15,500 MXN/mes
Destacado
Vivienda Popular, Guadalupe
64 m²
Calefacción
01/11/2025 en - Grupo Vía Inmuebles
Centros sanitarios
A 1 km de SIMILARES
Ocio
A 508 m de Ignacio Allende
Escuela
A 124 m de Escuela Primaria Profr. Aracely Gonzalez
Oficina de 64m2 + un patio trasero de 64m2 en renta sobre la Av. Pablo Livas cerca del estadio BBVA.
Espacios acondicionados: recepción, escritorios. Todos los servicios disponibles (excepto gas tiene instalación lista).
Fachada con excelente visibilidad comercial. Renta mensual de 15,500 + IVA.
Sobre avenida principal y transporte público. Id Gvia: 118983. EasyBroker ID: EB-UO9477
Oficina
1
$ 80,640 MXN/mes
Valle de Lindavista, Guadalupe
10 m²
27/06/2025 en - Realty World Rokali
Centros sanitarios
A 170 m de Doctor Hospital
Guardería
A 617 m de Josefa Ortiz De Dominguez
Escuela
A 660 m de Escuela Primaria Santiago Roel
Oficinas en Renta en Lindavista, GuadalupePisos de Oficinas Disponibles en Plaza Comercial ANTALYA
Oficinas en Renta en Lindavista, GuadalupePisos de Oficinas Disponibles en Plaza Comercial ANTALYALA PLAZA CUENTA CON 230 CAJONES DE ESTACIONAMIENTOESCALERASELEVADORESUnidades disponibles desde 448 m2, que se pueden dividir en 2 espaciosEL PRECIO POR m2 ES DE 180.00 MAS IVA*PRECIOS y DISPONIBILIDAD SUJETOS A CAMBIO SIN PREVIO AVISO*Contactanos.Expertos en Inmuebles
Oficina
$ 91,770 MXN/mes
América, Guadalupe
460 m²
Estacionamiento
04/09/2025 en - Metro Bienes Raíces
Centros sanitarios
A 1 km de SIMILARES
Guardería
A 831 m de Josefa Ortiz De Dominguez
Escuela
A 368 m de Escuela Profesor Rafael Garza Livas
Oficina en renta en 5 piso de 460 mts2 en plaza Antalya
Plaza Sobre avenida Miguel Aleman
Plaza comercial de 4 niveles
Torre de oficinas
Escaleras electricas
Elevadores
Estacionamiento techado 230 cajones
Precio mas mantenimiento y mas IVA
Vigilancia 24/7
Fachada de cristal templado
Oficina
1
$ 90,000 MXN/mes
Destacado
Linda Vista, Guadalupe
Acceso para personas con discapacidadAguaAire acondicionadoElectricidadEstacionamientoSeguridadTerraza
29/10/2025 en - TERRANUMA
Centros sanitarios
A 1 km de SIMILARES
Guardería
A 627 m de Josefa Ortiz De Dominguez
Ocio
A 566 m de Triangulo de juego
RENTA DE OFICINAS LINDA VISTA GUADALUPE NUEVO LEON
TOTALMENTE AMUEBLADA
300 M2
1 SALA DE JUNTAS
3 PRIVADOS
20 CUBICULOS
CLIMA CENTRAL
INCLUYE TODOS LOS SERVICIOS
TERRAZA
VIGILANCIA LAS 24 HORAS
CAMARAS DE SEGURIDAD
ESTACIONAMIENTO PARA 12 VEHICULOS
Contáctanos
ve----@terranuma.com.mx
www.terranuma.co----
Oficina
$ 275,000 MXN/mes
Monterrey
1,500 m²
Hace 2 semanas, 5 días en - Bodegas Monterrey
Centros sanitarios
A 1 km de IMSS UMF 17
Ocio
A 734 m de Enrique C. Livas
Universidad
A 1 km de ultad de medicina uanl Facultad de Medicina universidad autonoma de nuevo leon
Oficinas en Renta 1,500m2 Totales
45 Cajones de Estacionamiento (19 Cajones Techados y 26 Cajones Exteriores)
Ubicada muy Cerca de Av. Gonzalitos (1 cuadra) y Av. Ruiz Cortines (1 cuadra) muy Cerca de la Eco Vía y del Metro, Además Pasan las Rutas de Camión Urbano.
Las Oficinas cuentan con las Siguientes Áreas:
11 Privados de aprox. 3m x 4m, 1 Privado Dirección con baño 7.50 x 5.50
2 Salas de Juntas de 8m x 4m
Área Abierta de 400m2
18 Baños en Total
Cocina/Comedor
Área para el SITE
Bodegas Archivo.
Las Oficinas Actualmente están Rentadas (se desocupan en Mayo) y ya están Adaptadas con todas las Áreas antes Mencionadas, Iluminación, Contactos, Climas y Posiblemente dejen los Cableados de Red, están Listas para Meterse con su Mobiliario.
Precio de Renta $275,000 pesos ($183/m2). EasyBroker ID: EB-VE2920
Actualizado
Oficina
$ 30,000 MXN/mes
Destacado
Santa María, Monterrey
53 m²
Hace 6 horas en - Raquel Villarreal
Centros sanitarios
A 1 km de UMF 7
Ocio
A 688 m de Villas del Ovispo
Escuela
A 680 m de Primaria Laura García Jaime
Oficina en RENTA en TORRE ALBIA ubicada en el corredor Santa María, con 53m2 de construcción y completamente equipada.
***NO INLCUYE MOBILIARIO***
RENTA: $30,000.00 pesos mensuales.
Nota: Precio + IVA + Mantenimiento y sujetos a cambio sin previo aviso
Cuota de Mantenimiento $4,369.00
• Características relevantes de la oficina.
1.- M2 construcción: 53m2
2.- 2 cajones de estacionamiento, si desea más cajones solicitarlos con la administración de torre Albia.
3.- Recepción.
4.- 3 privados.
5.- Área común de trabajo.
6.- Área para centro de copiado.
7.- Coffee Station: Estéticamente oculto, con espacio para cafetera, frigobar y microondas.
8.- Zinc: estéticamente oculto.
9.- Site: se compone de un Braket de pared, switch, panel de parcheo y listo para que contactes tu conmutador análogo o digital.
10.- Voz/Datos: WiFi y 12 conexiones para cable de red.
11.- Preparación para ingreso con huella o teclado.
12.- Preparación para salida con botón o sensor mediante una chapa magnética electroimán.
13.- Centro de carga con 10 pastillas para controlar, luz de techo, contactos, coffe station, site, aire acondicionado y una pastilla para apagado total.
14.- Iluminación: Luz led en toda la oficina con 26 lámparas de 4,5 watts y un flujo lumínico de 400 lumens c/u.
15.- Sistema de Alarma, Sistema húmedo a base de rociadores , Detector óptico de humo, estación manual contra incendio y sirena con luz estroboscópica.
16.- Aire acondicionado: Marca LG inverted con capacidad de 4 Tons. y calefacción Heat pump.
Torre Albia es un edificio AAA nuevo y moderno, excelente ubicación. Con amenidades como, Bussiness Center con 6 Salas de juntas con espacios privados de diferentes capacidades, Lobby doble altura con servicio de recepción y acceso controlado, terraza en planta baja, 5 elevadores de alta velocidad Cafetería para empleados, vigilancia 24 Hrs..
Torre Albia está estratégicamente ubicado entre 2 avenidas y accesos muy rápido hacia San Pedro, Santa Catarina y Monterrey, NL…